Appartamento affittasi, Budapest VII distretto

Pagina principale » Appartamento affittasi, Budapest VII distretto » Appartamento affittasi, Budapest VII distretto

350 000 Ft

€910
Dati dell'inserzionista

Balogh Attila

Scrivi messaggio
Il messaggio deve contenere almento 10 caratteri.
Descrizione

Testo tradotto

Testo originale
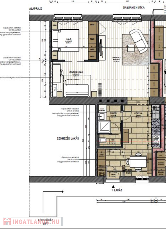
Kiadó a VII. kerületben, a Városliget közelében a Damjanich utcában egy felújított, 64 m2, két szobás lakás!

Az ingatlanba kisállat hozható!
A lakás csendes-világos, gépesített, részben bútorozott, de hatalmas beépített szekrényekkel rendelkezik.
Nappali-hálószoba-dolgozósarok elosztású. Két főnek a legideálisabb.

Akinek fontos az infrastruktúra és a liget közelsége, tekintettel, ha van kutyája, akkor a legideálisabb választás lehet.

Megtekintés előre egyeztetett időpontban, de rugalmasan működik.

Dati di Appartamento

6° piano

Mattone

Pompa di ricircolo (sistema di riscaldamento chiuso a pressione)

Rinnovato/a

Tutti i comfort

Non é stato fornito

64 metri quadrati

Condominio

Proprio/a

Ammobiliato/a

Panoramico/a

Mappa