Testo tradotto
Testo originale
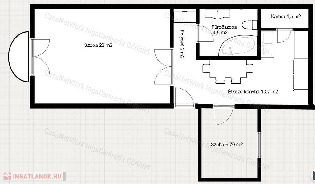
CasaNetWork Gödöllő Ingatlaniroda kínálatában BÉRBEADÓ társasházi lakás a Dózsa Gy úton (Szilhát utca sarkán), hosszútávra.
A lakás frissen festett, részben bútorozott, a képeknek megfelelően.
Egy világos, erkélyes nappali és egy félszobát kínál a kedves kis lakás. Az étkező és a konyha egylégterű, kényelmes kisebb családnak. Elektromos sütő és gázfőző áll rendelkezésre.
Az abalakok jól szigetelő thermo üveggel és redőnnyel felszereltek. Kondenzációs gázkazán biztosítja a fűtést, minden egyedi mérés alapján fizetendő. Alacsony a közös költsége. (12,500 Ft/hó). 2 havi kuciót kér a tulajdonos.
1 gépkocsi részére van felszínii beálló, ami sorompóval lezárt.
Ingyenes hitel tanácsadással, ügyvédi kapcsolattal és rugalmas időbeosztással állunk kedves ügyfeleink rendelkezésére! CASANETWORK - Ingatlanban otthon vagyunk
Pianterreno
Mattone
Pompa di ricircolo (sistema di riscaldamento chiuso a pressione)
Buono/a
Non é stato fornito
Non é stato fornito
51 metri quadrati
Non é stato fornito
Non é stato fornito
Non é stato fornito
Non é stato fornito
Cerchi nella nostra banca dati una semplice casa, appartamento, ufficio, garage, lotto o qualsiasi altro immobile!
Il dominio Immobiliare.hu é membro del Real Estate Group.
Immobili in vendita in Ungheria - Immobiliare.hu © 2026 Tutti i diritti riservati