Testo tradotto
                                                    
                            Testo originale
                            Bútorozott Luxuslakás Eladó Balatonföldváron – Azonnal költözhető - Kedvező Céges Hitelkonstrukcióval 
Fedezze fel Balatonföldvár legújabb prémium társasházát, ahol 1-től 5 szobás, modern kivitelezésű lakások várják Önt! A déli part népszerű üdülőhelyén található ingatlan tökéletes választás mind saját célra, mind befektetésként. Az épület felsőbb szintjein lévő lakások tágas teraszairól lenyűgöző balatoni panorámában gyönyörködhet, míg a földszinti lakásokhoz privát kertrész tartozik.
A lakópark nyugalmas környezetét a hatalmas, parkosított kert és a kültéri medence biztosítja, így ideális mind családok, mind azok számára, akik kiemelkedő hozamú befektetést keresnek.
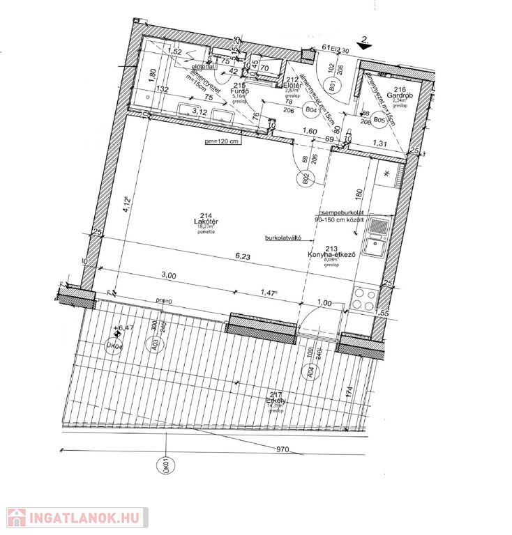
M-2.2 lakás
Ez az DK-i tájolású lakás 36,73 m²-es összterülettel rendelkezik, amely magában foglal:
Előteret (2,87 m²)
Fürdőszobát  (5,16 m²)
Konyhát és étkezőt (8,09 m²)
Nappalit (18,27 m²)
+ 14,39  m²-es erkélyt
Kivitelezés és felszereltség
A kivitelező a megszokott magas színvonalat és funkcionalitást helyezte előtérbe. A lakások modern, hőszivattyús fűtési és hűtési rendszerrel, valamint korszerű gépészeti megoldásokkal felszereltek.
Az épületben összesen 8 szint található (pinceszint, földszint + 6 emelet), ahol 56 luxuslakás, autóbeállók és tárolók kerültek kialakításra. Az autóbeállók és tárolók a pinceszinten vagy a kertben vásárolhatók meg. A társasházban 13 fős lift szolgálja a lakók kényelmét.
Elhelyezkedés
A társasház elhelyezkedése kiváló: a Balaton partja mindössze 100 méterre található, a környék infrastruktúrája pedig kivételes. Minden fontos szolgáltatás, bolt sétatávolságra elérhető, a déli part legnagyobb kikötője pedig 3 perces sétával megközelíthető.
További információ
Bankfüggetlen hitelcentrumunk segítséget nyújt a hitelügyintézésben. Az ingatlanok megtekintése kizárólag előre egyeztetett időpontban lehetséges. Telefonáljon és kérjen időpontot!
(További képekért és információkért kérem hívjon!)                        
Non é stato fornito
Mattone
Non é stato fornito
Ottimo/a
Non é stato fornito
Non é stato fornito
37 metri quadrati
Non é stato fornito
Non é stato fornito
Non é stato fornito
Non é stato fornito
 
                Cerchi nella nostra banca dati una semplice casa, appartamento, ufficio, garage, lotto o qualsiasi altro immobile!
Il dominio Immobiliare.hu é membro del Real Estate Group.
Immobili in vendita in Ungheria - Immobiliare.hu © 2025 Tutti i diritti riservati