Testo tradotto
Testo originale
Új építésű elegancia Pasaréten - ajándék jacuzzival!
A kortárs luxus új szintje: modern építészet, innovatív technológia és kompromisszummentes kényelem.
II. Pasarét szívében valósult meg ez az exkluzív, 2025-ben épült 5 lakásos, liftes társasház, melyben most még elérhetők prémium kialakítású lakások.
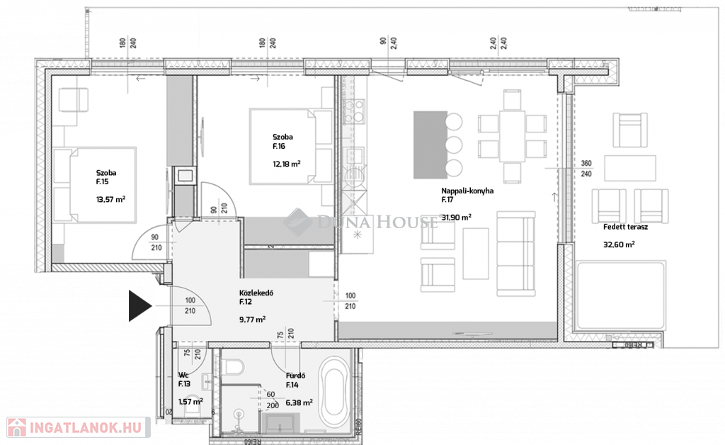
Tekintse meg ezt a földszinti, kertkapcsolatos, 95 m2-es lakást!
Helyiségei:
- nappali + amerikai konyha (32 m2)
- 2 szoba (12 m2, 13 m2)
- fürdő WC-vel (6 m2)
- külön WC
- közlekedő 10 m2
- terasz 41 m2
+ 2 állásos garázs (34 m2)
+ tároló (3 m2)
+ AJÁNDÉK JACUZZI!
A dús növényzettel teli, 2234 m2-es telekre épült 3 szintes ingatlan a városi kényelem és a természetközeli élet ideális kombinációját kínálja. A tervezés során kiemelten ügyeltek a privát terekre. Nagy figyelmet kapott a praktikusság, a tágas élettér és a kényelmes, jól kihasználható teraszok kialakítása, melyek alapterületének arányos része a megadott összterületbe is beleszámít. A teraszok jacuzzival és pergolával felszereltek.
Kertkapcsolat a földszinten, zöld lombkoronás kilátás az emeleten, és lélegzetelállító panoráma a penthouse-ból - mindez elegáns, prémium kivitelben. A lakások mindegyike értékálló, gondosan megtervezett otthon a legigényesebbek számára.
A társasház épülete minőségi anyagokból, modern építészeti megoldásokkal készült, letisztult homlokzattal és elegáns terekkel. Minden lakás világos, tágas, teraszos, és energiatakarékos gépészeti megoldásokkal felszerelt.
A konyhabútor és a beépíthető gépek kialakítása és beszerzése a leendő tulajdonosra vár, teljes mértékben az egyéni ízléséhez és igényekhez igazíthatóan.
A lakások azonnal költözhetőek.
Műszaki tartalom:
- előregyártott zsalupallós, monolit vasbeton födémszerkezetek
- 20 cm vastag, többrétegű lakáselválasztó falak, hálószobák között 12,5 cm vastag falszerkezetek
- homlokzati falakon 20 cm fekete üvegszövettel kasírozott kőzetgyapot hőszigetelés
- rámpafűtés a kocsibejárók, garázsfelhajtók burkolata alatt
- akadálymentes felvonó
- geotermikus hűtés-fűtés
- Wavin rendszerű meleg vizes központi padlófűtés, mennyezetfűtés-hűtés, kiegészítésként Daikin fan-coilok
- költséghatékony H-tarifa
- Helios KWL típusú, központi hővisszanyerős szellőzőgép
- távolvasási funkcióval rendelkező vízmérők
- nyílászárók üvegezése 3 rétegű hőszigetelő
- a fürdőkben elektromos törölközőszárítós radiátorok
- a fürdő és wc helyiségekben elektromos padlófűtés
- OKOSOTTHON LOXONE : világításvezérlés, árnyékolás, fűtés és hűtés, ébresztés, jelenlét szimuláció, riasztás, jó éjt mód, stb.
+ ajándék jacuzzi
Minden lakáshoz 2 garázshely és 1 tároló tartozik, melyek ára a lakás vételárán felül fizetendő.
Főbb előnyök: Pasarét - zöldövezet Buda közepén
Rengeteg fa, park, csendes utcák - szinte kertvárosi hangulat, de mégis közel a belvároshoz (autóval vagy busszal 10-15 perc a Széll Kálmán tér). Kiváló közlekedés: az 5-ös, 91-es, 155-ös, 291-es buszok és a 61-es villamos megállói a közelben.
Minőségi lakókörnyezet: sok régi villaház, új, modern társasház, és igényesen felújított lakás van itt. Emiatt az ingatlanárak is magasabbak az átlagosnál. Presztízs és nyugalom: Pasarétnek van egyfajta régi budai polgári hangulata - sok híres ember is itt lakott (pl. építészek, művészek, értelmiségiek).
A környék csendes, biztonságos, és kifejezetten családbarát. Kávézók, iskolák, sportlehetőségek. A közelben van több jó iskola (pl. Piarista Gimnázium, Francia Iskola, Britannica International School).
A környék ideális futásra, sétára, kutyázásra is.
Ez az ingatlan ideális választás mindazoknak, akik a budai eleganciát, a minőséget és a nyugalmat keresik, anélkül, hogy lemondanának a város közelségéről. Ha szereti a zöld, csendes, biztonságos, mégis város közeli életstílust, akkor hívjon bizalommal akár hétvégén is!
Pianterreno
Mattone
Non é stato fornito
In costruzione
Doppio comfort
Di nuova corstuzione
95 metri quadrati
Non é stato fornito
Non é stato fornito
Non é stato fornito
con vista sul giardino
Cerchi nella nostra banca dati una semplice casa, appartamento, ufficio, garage, lotto o qualsiasi altro immobile!
Il dominio Immobiliare.hu é membro del Real Estate Group.
Immobili in vendita in Ungheria - Immobiliare.hu © 2026 Tutti i diritti riservati