Appartamento vendesi, Budapest III distretto

Pagina principale » Appartamento vendesi, Budapest III distretto » Appartamento vendesi, Budapest III distretto

64 000 000 Ft

€178 194
Dati dell'inserzionista

Kónya Gábor

Scrivi messaggio
Il messaggio deve contenere almento 10 caratteri.
Descrizione

Testo tradotto

Testo originale
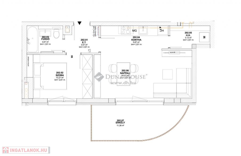
ENERGIATAKARÉKOS, PRÉMIUM LAKÁSOK TESTVÉRHEGY LÁBÁNÁL***Az építkezés elkezdődött, a szerkezetépítés hamarosan befejeződik*****CSOK, ÁFA visszaigénylés, illetékkedvezmény igénybe vehető***NAGYON JÓ ÁR/ÉRTÉK ARÁNY*A III. kerületben Óbuda hegyvidékén, a Testvérhegy lábánál épül ez a nívós, 12 lakásos, energiatakarékos társasház. Különlegessége az, hogy a zöldövezetben van, de mégis könnyen elérni a várost, akár tömegközlekedéssel, akár autóval.Az ingatlanfejlesztő tulajdonos az elmúlt 20 évben 471 db lakást épített Budapesten és vidéki nagyvárosokban. Transzparens, munkájára igényes, önerőből építő cég. A kivitelezés során a minőségi anyagfelhasználás és az energiatakarékosság kiemelt szempont, hogy időtálló, gazdaságosan üzemeltethető otthonokat hozzanak létre.A négyszintes épületben a -1 szinten lesznek a teremgarázsok, tárolók, illetve kerékpártárolók. Innen indul a 8 személyes lift a lakószintekre. A földszinten, az 1. és a 2. emeleten szintenként négy lakás, míg a 3. emeleten egy nagyteraszos lakás kerül kialakításra. A lakástípusokhoz nagy, élhető terasz kapcsolódik, a földszinti lakásokhoz pedig saját kert is tartozik. A lakásokhoz teremgarázshely (+6 MFt) és tároló (+2-3 MFt) vásárolhatóINGATLANOK MÉRETE45.08-98.04 NMSZOBÁK2-3-4 SZOBATERASZOK10-81 NM közöttÁRFEKVÉS63-149 MFTJELLEMZŐK- 15 cm külső hőszigetelés- 25 cm-es hangátló lakáselválasztó falak- hőszigetelt háromrétegű ablakok- kiépített redőnytokok, melyek motoros redőnyök fogadására is alkalmasak- több ponton záródó bejárati ajtók- mennyezet hűtés/fűtés, hőszivattyús levegő-víz fűtő/hűtő rendszerrel- hidegburkolatok alatt padlófűtés a konyhában, fürdőkben- harmatpontérzékelővel ellátott digitális, internetről vezérelhető termosztátok helyiségenként- hidegburkolatok, parketta, szaniterek, beltéri ajtók választhatók- kaputelefon, riasztó előkészítés- füvesített, növényekkel beültetett, kertÁTADÁS: 2024. decemberA részletekkel kapcsolatban várom jelentkezését! Hívjon, akár hétvégén is!

64000000 Ft

Referencia szám: PR068681/LK/18924

Dati di Appartamento

2° piano

Mattone

Pompa di ricircolo (sistema di riscaldamento chiuso a pressione)

In costruzione

Non é stato fornito

Di nuova corstuzione

50 metri quadrati

Non é stato fornito

Non é stato fornito

Non é stato fornito

Non é stato fornito

Mappa
Fotografie