Appartamento vendesi, Budapest III distretto

Pagina principale » Appartamento vendesi, Budapest III distretto » Appartamento vendesi, Budapest III distretto

148 900 000 Ft

€393 551
Dati dell'inserzionista

Vargová Eva

Scrivi messaggio
Il messaggio deve contenere almento 10 caratteri.
Descrizione

Testo tradotto

Testo originale
Oázis Óbuda szívében – Napsütötte teraszok, elegáns otthonok, kertvárosi.

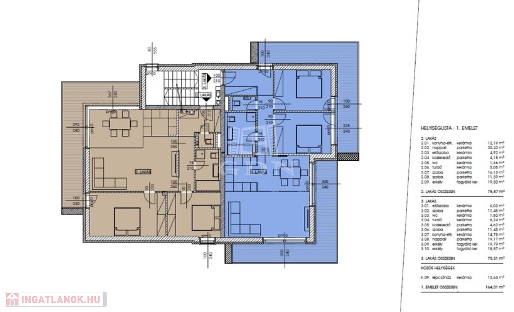
Alapterület: 75,87 m²

Teraszok összesen: 38,66 m²

Összesen: 94,84 m²

Ár: 147 M Ft
A teremgarázs ára 8 M Ft, melyet kötelező megvenni.

Energetikai besorolás: A+

A beruházásról:

A Kisbojtár Projekt a III. kerület egyik legkedveltebb részén, a Bojtár utca és a Kisbojtár utca találkozásánál helyezkedik el. A Bécsi és Szentendrei utak között fekvő, barátságos lakóövezet csendes kertvárosi hangulatot és kiváló közlekedési lehetőségeket kínál

Bölcsőde, óvoda, iskolák, valamint több szuper- és hipermarket néhány perc alatt elérhetők — mindezt egy meghitt, nyugodt környezetben, amely ideális választás az igényes otthonkeresők számára.


Az épület és a lakások

A projekt két épületében összesen 8 lakás épült:

63 m²-től a 83 m²-es penthouse lakásig

Földszinten kertkapcsolatos lakások

Emeleteken tágas teraszok

Legfelső szinteken különleges kialakítású otthonok

A pinceszinten kényelmes teremgarázsbeállók és közös gépészeti helyiségek találhatók. Az épületeket világos terek, átgondolt alaprajzok, esztétikus és praktikus kialakítás jellemzi.


Műszaki tartalom
A+ energetikai besorolás

Daikin levegő–levegő hőszivattyús fűtés, padlófűtéssel

Szobánként 1-1 hűtő-fűtő fancoil

5 légkamrás, 3 rétegű nyílászárók

Elektromos alumínium redőny előkészítés

Nagylapos fürdőszobai burkolatok

15 cm kőzetgyapot homlokzati szigetelés

A korszerű gépészet és szigetelés egész évben kellemes belső klímát biztosít alacsony fenntartási költségek mellett.


A kínált lakás:

Ez a napfényes, első emeleti, 75,87 m²-es lakás két nagy méretű terasszal (összesen 38,66 m²) rendelkezik, így ideális választás azoknak, akik szeretik a tágas, világos tereket és a szabadtéri életteret.

A lakás azonnal beköltözhető, per- és tehermentes.

Ár: 147 M Ft

Garázs külön megvásárolható: 8 M Ft

Dati di Appartamento

1° piano

Mattone

Non é stato fornito

Ottimo/a

Tutti i comfort

Di nuova corstuzione

75 metri quadrati

Non é stato fornito

Proprio/a

Non é stato fornito

del cortile

Mappa
Fotografie