Appartamento vendesi, Budapest IV distretto

Pagina principale » Appartamento vendesi, Budapest IV distretto » Appartamento vendesi, Budapest IV distretto

79 000 000 Ft

€203 043
Dati dell'inserzionista

Kiss Márk

Scrivi messaggio
Il messaggio deve contenere almento 10 caratteri.
Descrizione

Testo tradotto

Testo originale
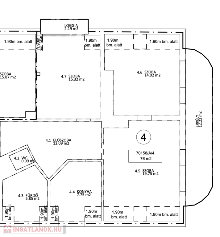
IV. kerületben, a Deák Ferenc utcában eladó egy 84 m2-es, ERKÉLYES (14 m2), 3 szobás, CSENDES, VILÁGOS, jó állapotú lakás.

A 2010-ben épült 5 lakásos társasház 1 emeletes.

A lakás főbb jellemzői:

- TEHERMENTES
- kitűnő beosztású
- 2 erkélyes
- zárt lépcsőház
- alacsony rezsi
- minden egyedileg mérhető
- ablakos konyhás

Fűtése: gáz cirkó

Közelben: Újpesti piac, bevásárlási lehetőségek, óvoda, iskola, bankok, posta, gyógyszertár stb.

Közlekedés: kiváló (Újpest központ 10 perc sétára)

További részletekért, hívjon bizalommal!
K.M.

Dati di Appartamento

1° piano

Mattone

Pompa di ricircolo (sistema di riscaldamento chiuso a pressione)

Buono/a

Tutti i comfort

di 11-20 anni

84 metri quadrati

Non é stato fornito

Proprio/a

Non é stato fornito

con vista sul giardino

Mappa