Appartamento vendesi, Budapest VI distretto

Pagina principale » Appartamento vendesi, Budapest VI distretto » Appartamento vendesi, Budapest VI distretto

112 156 056 Ft

€286 200
Dati dell'inserzionista

Andrássy Róbert

Scrivi messaggio
Il messaggio deve contenere almento 10 caratteri.
Descrizione

Testo tradotto

Testo originale
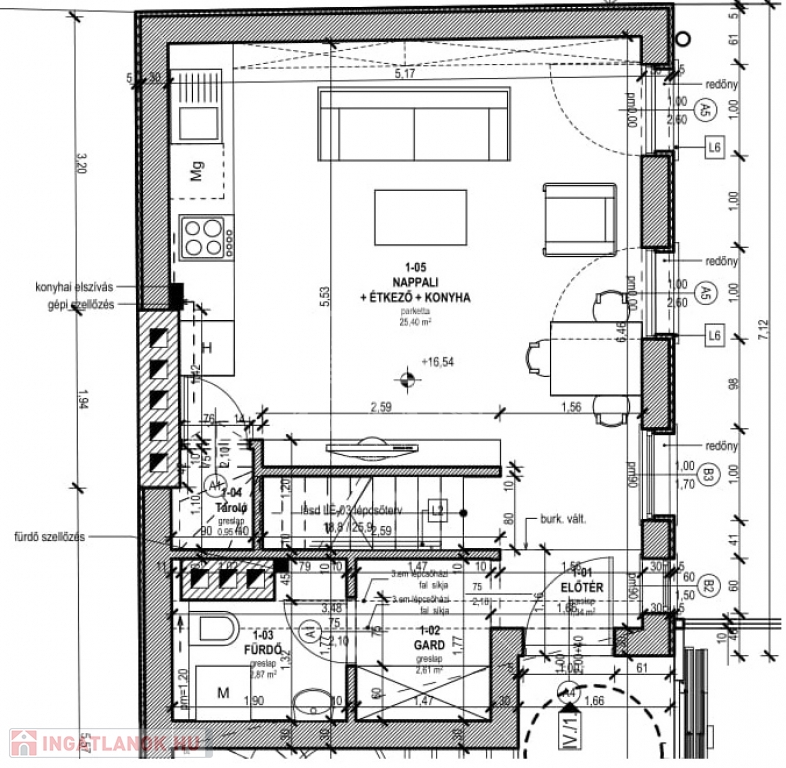
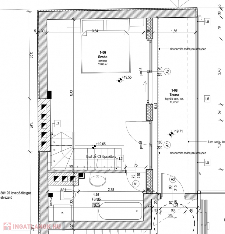
Operaház közelében ajánljuk figyelmébe ezt az azonnal költözhető, két szobás, duplakomfortos, nagy erkélyes ingatlant. A lakás zártlépcsőházból nyílik. Elhelyezkedésének köszönhetően akár a hosszú távú bérbeadásra vonatkozó kilátások is kecsegtetőek . Az alsó szinten a konyha & nappali található 25m2-en, az emeleten pedig a 19m2-es hálószoba melyből a 11m2-es terasz is megközelíthető. A nappali mellett található fürdő zuhanykabinnal felszerelt a hálószoba melletti pedig káddal ellátott. A teljes lakás klimatizált. Az épület kis lakóközösségű, a beépítéssel párhuzamosan a homlokzatok felújításra kerültek és felvonó is beépítésre került.

Dati di Appartamento

5° piano

Mattone

Pompa di ricircolo (sistema di riscaldamento chiuso a pressione)

Ottimo/a

Doppio comfort

Di nuova corstuzione

66 metri quadrati

Non é stato fornito

Proprio/a

Non é stato fornito

del cortile

Mappa
Fotografie