Appartamento vendesi, Budapest VI distretto

Pagina principale » Appartamento vendesi, Budapest VI distretto » Appartamento vendesi, Budapest VI distretto

770 000 000 Ft

€1 993 528
Dati dell'inserzionista

Andrássy Róbert

Scrivi messaggio
Il messaggio deve contenere almento 10 caratteri.
Descrizione

Testo tradotto

Testo originale
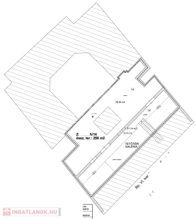
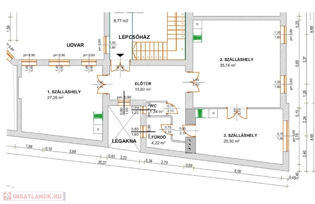
Ha turisztikai célú befektetést keres a Szent István Bazilika környékén jó megtérüléssel nem is kell tovább keresnie. Eladásra kínálunk egy ingatlan együttest egy jó állapotú liftes társasházban. Az épület 1. és 2. emeletén egy-egy polgári lakást melyekből 3-3 önháló apartman alakítható ki. A csomag része továbbá a komplett 3. és 4.+5. emelet ahol további 16 apartman kialakítható. A legfelső V. emelet tökéletes lehet egy reggeliztetőt & Sky bar kialakítására. A társasház jelenleg is engedélyezi a rövid távú bérbeadást. Az ingatlan csomag együttesen a társasház 50% feletti részét jelenti. Az ingatlanhoz teremgarázzshely bérelhető a szovszédosépület alatt

Dati di Appartamento

3° piano

Mattone

Non é stato fornito

Da rinnovare

Tutti i comfort

di oltre di 50 anni

800 metri quadrati

Non é stato fornito

Proprio/a

Non é stato fornito

Panoramico/a

Mappa