Testo tradotto
                                                    
                            Testo originale
                            Exkluzív lakás eladó Budapest szívében, az VI. kerületben – páratlan panorámával az óriáskerékre!
Budapest történelmi belvárosában, az VI. kerület egyik legpatinásabb épületében kínáljuk megvételre ezt a 55 m²-es, 2+1 szobás, duplakomfortos lakást. Az 1816-ban épült, liftes társasház kifogástalan állapotban őrzi a klasszikus hangulatot, miközben modern kényelmet biztosít.
Az épületben lakások és irodák is vannak, és a környék népszerű a lakásvásárlók körében.
Az Andrássy út a világörökség része, és az egyik legikonikusabb sugárút Budapesten.
A lakás különlegességét a lenyűgöző panoráma adja: ablakaiból közvetlen kilátás nyílik Budapest ikonikus óriáskerekére. A nyugati tájolás és a 2,8 méteres belmagasság elegáns, világos és tágas életteret teremt.
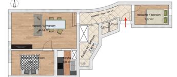
A fotókon a lakás felújítási tervei láthatók, tehát az ingatlan akár kulcsrakész állapotban is átvehető. A jelenlegi állapotáról kérése tudok fotókat küldeni.
Kiemelt tulajdonságok: Alapterület: 55 m²
Szobák: 2 + 1
Duplakomfort, beépített konyhabútor,
Légkondicionáló.
Nyugati fekvés, napfényes terek,
Radiátoros gázcirkó fűtés
Lift, kerékpártároló 1/1 tulajdon, tehermentes
A ház külső és belső állapota egyaránt kifogástalan, környezete elegáns és reprezentatív.
Az ingatlan tökéletes választás mindazoknak, akik egy valódi kuriózumot keresnek Budapest belvárosában – akár saját otthonnak, akár értékálló befektetésnek.
                        
5° piano
Mattone
Pompa di ricircolo (sistema di riscaldamento chiuso a pressione)
Rinnovato/a
Doppio comfort
di oltre di 50 anni
55 metri quadrati
Condominio
Proprio/a
Parzialmente ammobiliato/a
della strada
                Cerchi nella nostra banca dati una semplice casa, appartamento, ufficio, garage, lotto o qualsiasi altro immobile!
Il dominio Immobiliare.hu é membro del Real Estate Group.
Immobili in vendita in Ungheria - Immobiliare.hu © 2025 Tutti i diritti riservati