Testo tradotto
                                                    
                            Testo originale
                            P21702
 XI., KELENVÖLGYBEN ÚJ ÉPÍTÉSŰ 3 SZOBÁS KERTKAPCSOLATOS LAKÁS ELADÓ
 Kelenvölgy legkedveltebb részén, Ringló út mellékutcájában, családi házas környezetben új építésű lakás eladó.
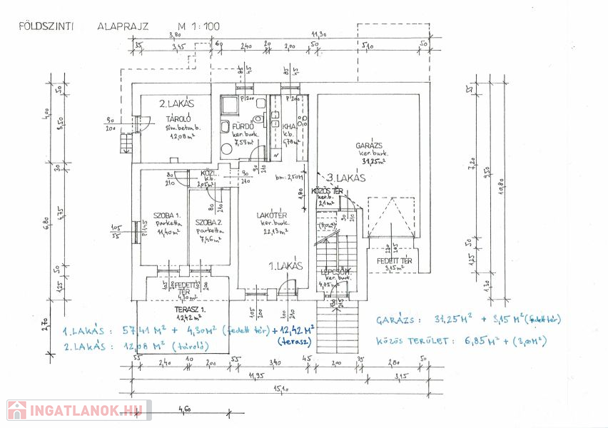
Az épületben 3 lakást alakítottak ki: A földszinten egy nappali+2 szobás lakást valamint  két darab kétszintes nagyobb lakást az 1. emelet-tetőtérben.
Az eladó lakás 58 nm-es:
- 29 nm-es amerikai konyhás nappaliból, 2 hálószobából ( 11,4 és 7,46 nm ) mindkettő terasz-és kertkapcsolattal, egy fürdőszobából ( 7,6 nm ) valamint közlekedőből áll, a lakótérhez egy részben fedett-részben nyitott 16 nm-es terasz kapcsolódik.
A lakás az épületben lévő másik két lakástól kellően szeparált, az előkertből megközelíthető, míg a másik két lakás a lépcsőházból nyílik és a felső két szinten helyezkedik el.
Akadálymentes megközelíthetősége miatt nemcsak fiataloknak, hanem idősebb generáció részére is kényelmes életteret nyújt.
Műszaki tartalom és felszereltség:
- A+ energetikai besorolás: A legmagasabb energiahatékonyságot garantálja, minimalizálva a fenntartási költségeket.
- Hőszivattyús fűtés – H tarifás: Környezetbarát és gazdaságos padlófűtés 
- Prémium nyílászárók: Aluplast Energeto passzív házakhoz való, fehér ablakok redőnnyel és szúnyoghálóval felszerelve a maximális szigetelés és kényelem érdekében.
- Minőségi belső ajtók: Fehér, elegáns CPL belső ajtók és biztonsági bejárati ajtó.
- Riasztórendszer előkészítés a nyugodt mindennapokért.
- Prémium kategóriás külső és belső burkolatok, melyek eleganciát és tartósságot kölcsönöznek az otthonoknak.
- Napelem előkészítés: A becsövezés megtörtént, így a jövőben könnyedén telepíthető napelemrendszer.
- Kiemelkedő szigetelés: 15 cm-es oldalfali hőszigetelés, szintek közötti lépésálló szigetelés, a lakások között Silka hanggátló szigetelés, valamint Pur habos tetőszigetelés a maximális energiahatékonyság és a nyugodt otthoni környezet biztosításáért.
Az ingatlan elhelyezkedése kiváló. Iskolák, óvodák és a tömegközlekedés (busz, villamos ) 10 perc alatt elérhetők, így a városi élet kényelme és a természet közelsége egyaránt biztosított.
 További képek, részletes leírás megtekintéséhez másolja be az alábbi hivatkozást böngészőjének címsorába: www.ingatlanonki.hu/21702                        
Pianterreno
Non é stato fornito
Altro
Ottimo/a
Non é stato fornito
Di nuova corstuzione
58 metri quadrati
Non é stato fornito
Non é stato fornito
Non é stato fornito
Non é stato fornito
 
                Cerchi nella nostra banca dati una semplice casa, appartamento, ufficio, garage, lotto o qualsiasi altro immobile!
Il dominio Immobiliare.hu é membro del Real Estate Group.
Immobili in vendita in Ungheria - Immobiliare.hu © 2025 Tutti i diritti riservati