Appartamento vendesi, Budapest XI distretto

Pagina principale » Appartamento vendesi, Budapest XI distretto » Appartamento vendesi, Budapest XI distretto

79 930 000 Ft

€222 547
Dati dell'inserzionista

Nagy Sándor

Scrivi messaggio
Il messaggio deve contenere almento 10 caratteri.
Descrizione

Testo tradotto

Testo originale
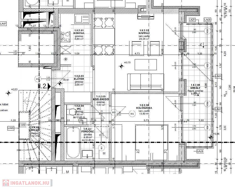
Kész lakások Péterhegyen, az OTP Ingatlanpont projektértékesítő szakértőitől.
OTP hitelekhez kamatkedvezményt adunk a nálunk vásárló ügyfeleinknek!
Hitel és CSOK tájékoztatás, már a megtekintést követően, díjmentesen elérhető!
Lakások mérete: 43 nm-es, 1,5 szobás lakástól a 150 nm-es, 5 szobás és a tetőteraszos, exkluzív penthouseig.
Valamennyi lakáshoz lehetőség nyílik garázs vásárlására.
5-10 nm nagyságú tárolók választhatók.
Tudjon meg többet, hívjon bizalommal!

Az energetikai tanúsítvány készítése folyamatban van, amint rendelkezésre áll, úgy azzal a hirdetés frissítésre kerül.

Dati di Appartamento

2° piano

Mattone

Riscaldamento centralizzato della casa (con misuratore singolo)

In costruzione

Tutti i comfort

Di nuova corstuzione

50 metri quadrati

Non é stato fornito

Non é stato fornito

Non é stato fornito

con vista sul giardino

Mappa