Appartamento vendesi, Budapest XIV distretto

Pagina principale » Appartamento vendesi, Budapest XIV distretto » Appartamento vendesi, Budapest XIV distretto

119 900 000 Ft

€314 409
Dati dell'inserzionista

Szőke Katalin

Scrivi messaggio
Il messaggio deve contenere almento 10 caratteri.
Descrizione

Testo tradotto

Testo originale
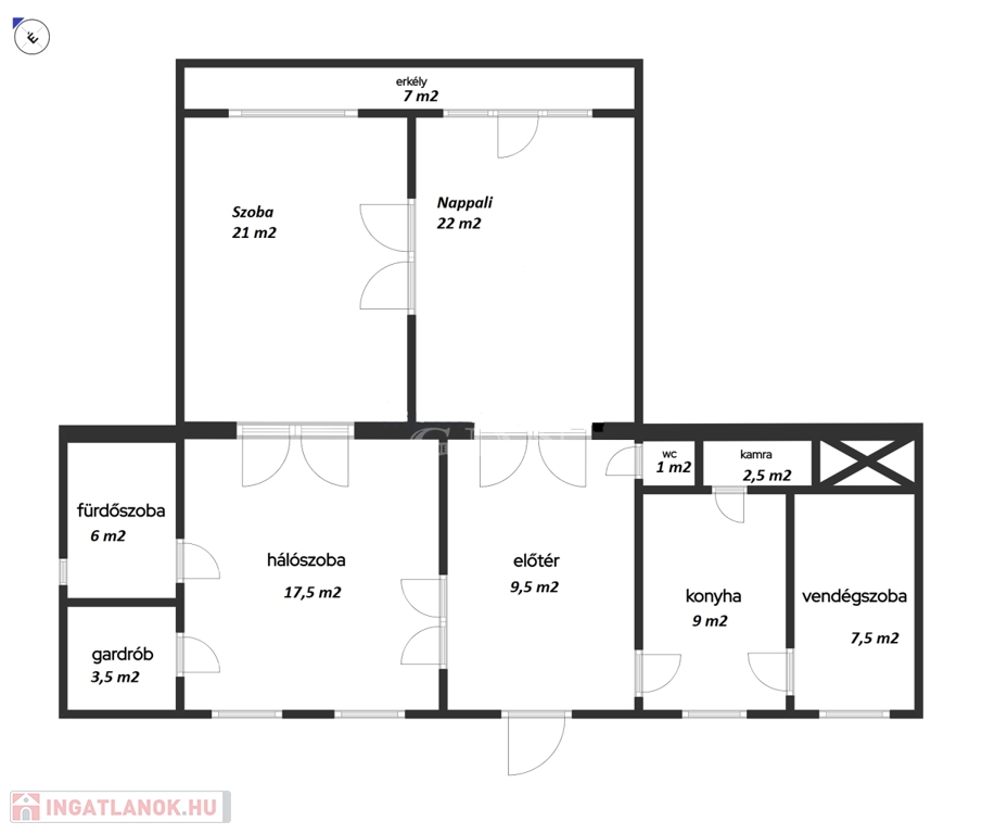
# ELADÓ LAKÁS # XIV. KERÜLET # ILKA UTCA # 104 m2 # 1. EMELETI # 3+1 SZOBÁS # 7 m2 ERKÉLY #

A fotók közt néhány látványterv is felkerült, segítségként az új tulajdonos számára.

VÁROSRÉSZ: Istvánmező

ALAPTERÜLET: 104 nm

HELYSÉGEK:
- Nappali 22 nm
- Szoba 21 nm
- Szoba 17,5 nm
- Fél szoba 7,5 nm
- Konyha 9 nm
- Előtér-közlekedő 9,5 nm
- Fürdőszoba 6 nm
- WC 1 nm
- Gardrób 3,5 nm
- Kamra 2,5 nm

FALAZAT: tégla
TÁJOLÁS: Dél nyugat
GÉPÉSZET: részben- felújított, új vezetékek, strangok megújultak.
FŰTÉSRENDSZER: Gáz-cirkó, Hűtő-fűtő klíma, alternatív lehetőségként cserépkályha biztosítja a kellemes hőmérsékletet.
BURKOLATOK: parketta, és járólap.
NYÍLÁSZÁRÓK: Új műanyag ablakok, jó minőségű beltéri ajtók, új több ponton záródó bejárati ajtó.
A ház kívülről felújított.
KÖZÖS KÖLTSÉG: 19.000. Ft, - mely felújítási alapot is tartalmaz.
REZSI: villany, víz, gáz kb: 40.000.-Ft

KÖZLEKEDÉS: 1.-es, villamos, 7.-es buszcsalád, Zugló vasútállomás Volán busz pályaudvar, M2.-as metró , Stadionok, M4.-es metró Keleti néhány perc alatt elérhetőek.

Ajánlom az ingatlant, családoknak, csendes tevékenységű irodai célra is alkalmas.

Hívjon bizalommal, nézze meg személyesen!

Dati di Appartamento

1° piano

Mattone

Pompa di ricircolo (sistema di riscaldamento chiuso a pressione)

Rinnovato/a

Tutti i comfort

di oltre di 50 anni

104 metri quadrati

Non é stato fornito

Proprio/a

Non é stato fornito

della strada

Mappa