Testo tradotto
Testo originale
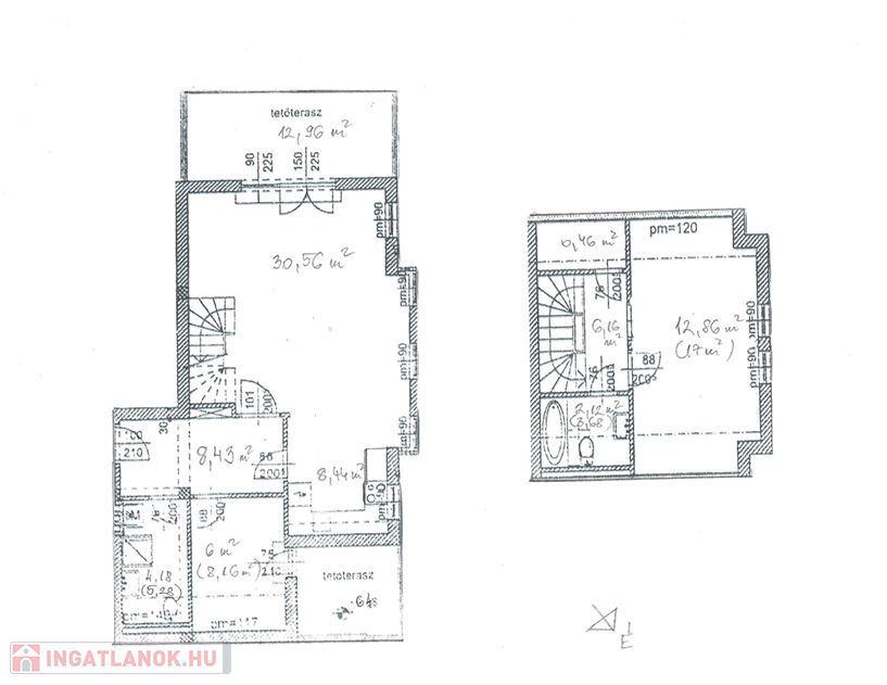
A XIV. kerületben, Alsórákos csendes, kertvárosi részén, a Szilágysomlyó utcában kínálunk megvételre egy 2001-ben épült, 9 lakásos társasházban található, nappali + 2 hálószobás, belső kétszintes, duplakomfortos, dupla teraszos lakást.
A nettó 79 m²-es (1,9 m alatti részekkel együtt 91 m²) lakáshoz összesen 20 m² terasz tartozik (13 m² + 6,5 m²). Világos, napos, csendes otthon, egyedi cirko fűtéssel és problémamentes lakóközösséggel. A házhoz ápolt, tágas közös kert tartozik.
Elrendezés
Alsó szint:
Egyedileg tervezett amerikai konyhás nappali
Nagy, déli fekvésű, étkezésre is alkalmas terasz
Kertre néző háló/dolgozószoba vagy vendégszoba, saját zuhanyzós fürdőszobával
Előszoba jó tárolási lehetőségekkel
Második, kisebb terasz
Emelet (tetőtér):
Egyedi falépcső vezet fel
Jelenleg egybenyitott hálótér (eredetileg 2 külön szoba, visszaalakítható)
Gardrób
Kádas fürdőszoba
A lakás kiváló választás otthoni munkavégzéshez vagy akár két kisgyermekes család számára is.
Az ingatlan megkímélt, folyamatosan karbantartott, műszaki és esztétikai állapota kiváló.
MŰSZAKI ADATOK
Alapterület: 79 m² (bruttó 91 m²)
Teraszok: összesen 20 m² (13 m² + 6,5 m²)
Szobák száma: nappali + 2 háló (jelenleg 2 háló, visszaalakítható 3-á)
Fürdőszobák: 2 (zuhanyzós + kádas)
Fűtés: egyedi gázcirkó
Építés éve: 2001
Társasház: 9 lakásos
Homlokzat: szigetelt
Tető: Bramac betoncserép
Állapot: kiváló, karbantartott
Közös kert: gondozott, tágas
Parkolás: külön helyrajzi számon lévő teremgarázs
Tároló: 4 m²
A garázs és a tároló ára: +10 millió Ft.
BEFEKTETÉSI LEHETŐSÉG
A belső kétszintes kialakítás, a 3 szobás lehetőség, a dupla komfort és a két nagy terasz kifejezetten vonzóvá teszi családok és bérlők számára egyaránt.
A tetőtéri rész visszaalakítható két külön hálószobává, így az alaprajz rugalmasan igazítható az igényekhez.
A kertvárosi, csendes környezet és a kiváló állapot hosszú távon is értékálló befektetést jelent.
KÖRNYÉK ÉS KÖZLEKEDÉS
Alsórákos Zugló egyik legkedveltebb, kertvárosi része, nyugodt, zöld környezetben.
A környéken bevásárlási lehetőségek, szolgáltatások, iskolák és óvodák könnyen elérhetők.
Tömegközlekedéssel és autóval is jól megközelíthető, a belváros kényelmesen elérhető.
2° piano
Mattone
Pompa di ricircolo (sistema di riscaldamento chiuso a pressione)
Buono/a
Doppio comfort
Non é stato fornito
89 metri quadrati
Non é stato fornito
Non é stato fornito
Non é stato fornito
Non é stato fornito
Cerchi nella nostra banca dati una semplice casa, appartamento, ufficio, garage, lotto o qualsiasi altro immobile!
Il dominio Immobiliare.hu é membro del Real Estate Group.
Immobili in vendita in Ungheria - Immobiliare.hu © 2026 Tutti i diritti riservati