Appartamento vendesi, Cegléd

Pagina principale » Appartamento vendesi, Cegléd » Appartamento vendesi, Cegléd

68 000 000 Ft

€177 875
Dati dell'inserzionista

Horváthné Monori Rita

Scrivi messaggio
Il messaggio deve contenere almento 10 caratteri.
Descrizione

Testo tradotto

Testo originale

Új építésű lakások eladók Cegléden – már csak két lakás maradt!


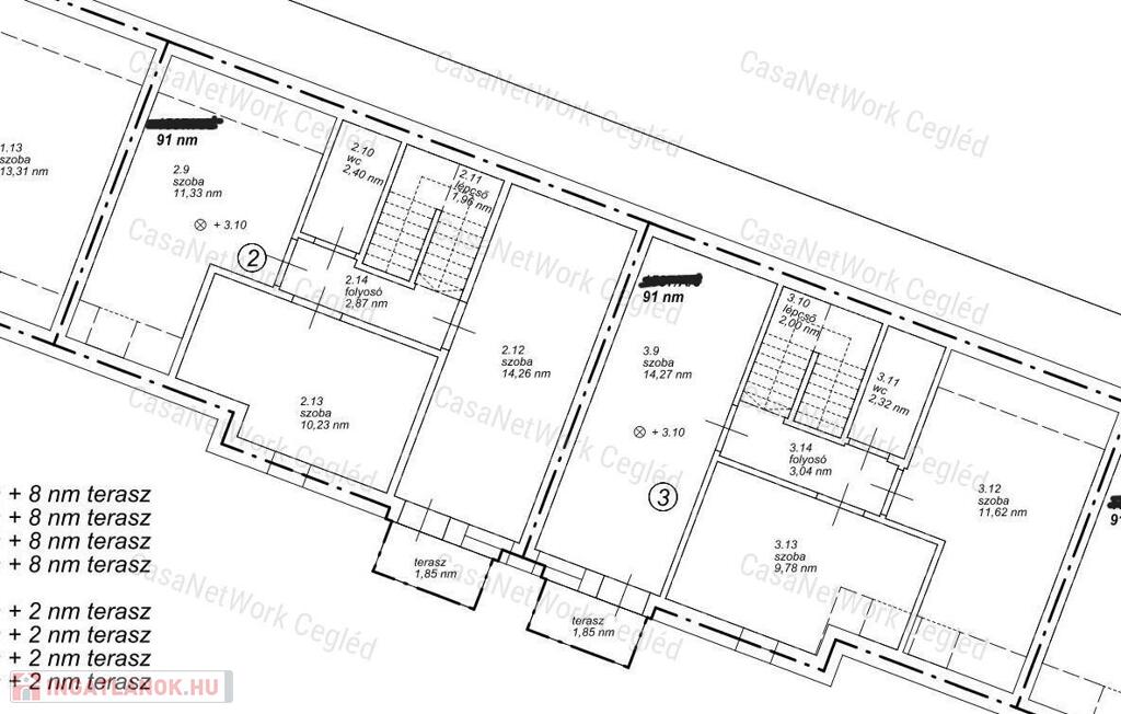
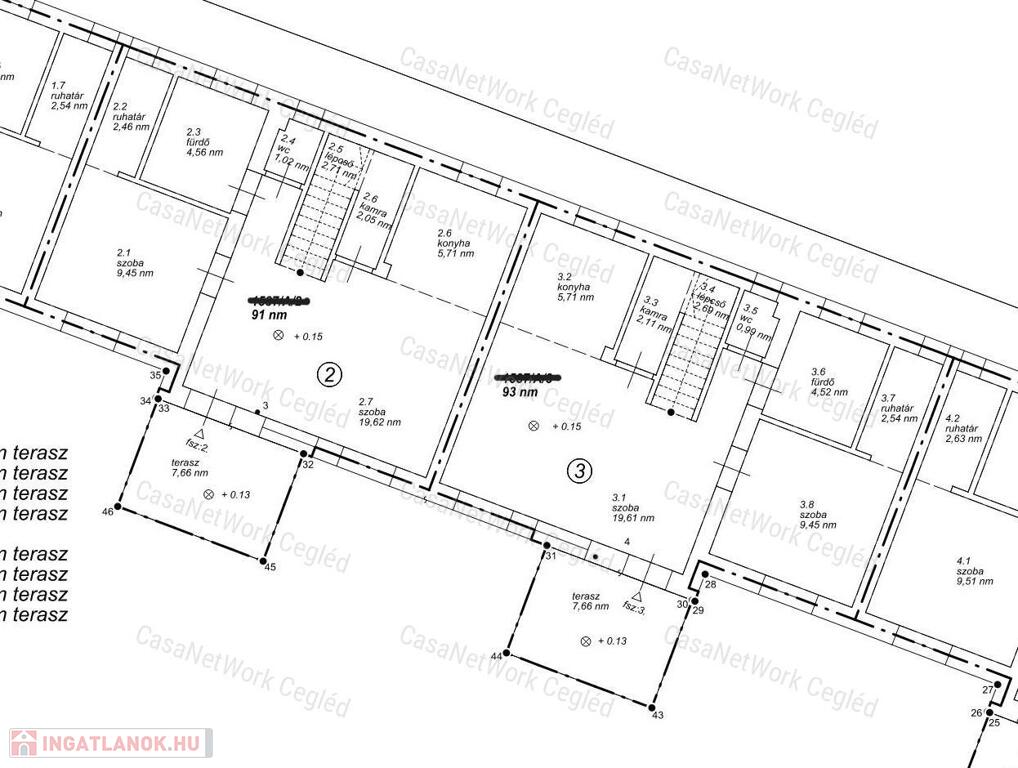
A CasaNetwork Cegléd kínálatában elérhető egy 4 lakásos, modern társasház, amelyből már csak a 2-es és 3-as számú lakás eladó (azonosító: 174602146). A hirdetésben szereplő lakás a 2 lakás.


Az ingatlan 91 m² alapterületű, sorházi jellegű épület része, zárt udvarban helyezkedik el, saját kerttel és parkolóhellyel.
A lakás idei átadású, önálló helyrajzi számmal rendelkezik, valamint fix 3% hitelre OSP konstrukcióra is alkalmas.


A lakások kétszintesek, tetőtér-beépítésesek és tégla építésűek, korszerű anyagokkal, modern technológiával és kiváló hőszigeteléssel készülnek. A tágas, napfényes helyiségek és az átgondolt belső elrendezés kényelmes, otthonos életteret biztosítanak.


A társasház Cegléd egyik kedvelt, csendes, családbarát környékén található. A közelben bevásárlási lehetőségek, iskola, óvoda és buszmegálló is megtalálhatók, így a mindennapi élethez szükséges minden karnyújtásnyira van.


Ezek a lakások ideális választást jelentenek családoknak és pároknak, akik minőségi, új építésű otthont keresnek Cegléden, zárt udvarban, saját kerttel és parkolóval.

A földszinten egy világos nappali, konyha, fürdőszoba, külön WC, szoba és tároló kapott helyet, valamint egy 7,6 m²-es terasz is tartozik a lakáshoz, amely közvetlen kapcsolatot biztosít a kerttel. Az emeleten egy közlekedő, három külön nyíló szoba, egy WC és egy 1,8 m²-es erkély található.


Az ingatlan A+ energetikai besorolású, tégla falazattal, beton alappal és hungarocell hőszigeteléssel épül. A belmagasság 2,7 méter, a nyílászárók korszerű, hő- és hangszigetelt műanyag ablakok, a tetőtérben pedig VELUX tetőablakok kerülnek beépítésre. A fűtést és a hűtést kondenzációs gázkazán, padlófűtés, valamint hőszivattyú és hűtő-fűtő klíma biztosítja, továbbá H tarifa is elérhető.


A parkolás az udvarban, saját, ingyenes parkolóhelyen megoldott. 


A lakások CSOK és banki hitel igénylésére is alkalmasak, bővebb tájékoztatás személyesen kérhető. Az alaprajzok és további információk előzetes időpont-egyeztetést követően a CasaNetwork ceglédi irodájában megtekinthetők.


Amennyiben a 174602146-os számú, új építésű társasházi tégla lakás vagy bármely más kínálatunkban szereplő ingatlan felkeltette érdeklődését, hívjon bizalommal. Kollégánk díjmentes, banksemleges hitelügyintézéssel áll rendelkezésére.


CasaNetwork – Ingatlanban otthon vagyunk!

Dati di Appartamento

Pianterreno

Mattone

Pompa di ricircolo (sistema di riscaldamento chiuso a pressione)

Buono/a

Non é stato fornito

Non é stato fornito

91 metri quadrati

Non é stato fornito

Non é stato fornito

Non é stato fornito

Non é stato fornito