Appartamento vendesi, Debrecen

Pagina principale » Appartamento vendesi, Debrecen » Appartamento vendesi, Debrecen

67 193 000 Ft

€177 929
Dati dell'inserzionista

Rácz Zsolt

Scrivi messaggio
Il messaggio deve contenere almento 10 caratteri.
Descrizione

Testo tradotto

Testo originale
Belvárosi luxus társasház
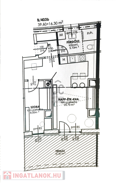
Debrecen abszolút Belvárosában, de mégis csendes övezetben, modern, egyedi megjelenésű, liftes társasház épül a földszinten 4 üzlettel és a -1 szinten teremgarázs parkolókkal. A lakások között vannak földszinti kertkapcsolatosak, és penthouse jellegűek is. A projekt tervezésénél, az elsődleges szempont az otthonos, élhető lakások építése volt. Az épületben helyet kapó lakások mindegyike egyedileg kialakított tágas terekkel, jó funkcionalitással és nagy méretű loggiákkal, teraszokkal rendelkezik. A lakások minőségi anyagok felhasználásával készülnek, a legkorszerűbb 3 rétegű üvegezésű ablakokkal, hőszivattyús klímával ellátottak. A belvárosban található ingatlan pár perc sétára található a Nagytemplomtól, a Piactól és a Bevásárló központoktól. Egyéb információért hívjon bizalommal. Ez a 4. emeleti lakás 39,6 nm-es, nappali-étkező-konyha, + 1 szobás, 16,3 nm-es terasszal.
Projekt bemutatása

-

Dati di Appartamento

Non é stato fornito

Mattone

Centralizzato/a con misuratore singolo

Ottimo/a

Non é stato fornito

Non é stato fornito

40 metri quadrati

Non é stato fornito

Non é stato fornito

Non é stato fornito

con vista sul giardino

Fotografie