Appartamento vendesi, Győr

Pagina principale » Appartamento vendesi, Győr » Appartamento vendesi, Győr

57 990 000 Ft

€148 240
Dati dell'inserzionista

Neizer Éva

Scrivi messaggio
Il messaggio deve contenere almento 10 caratteri.
Descrizione

Testo tradotto

Testo originale

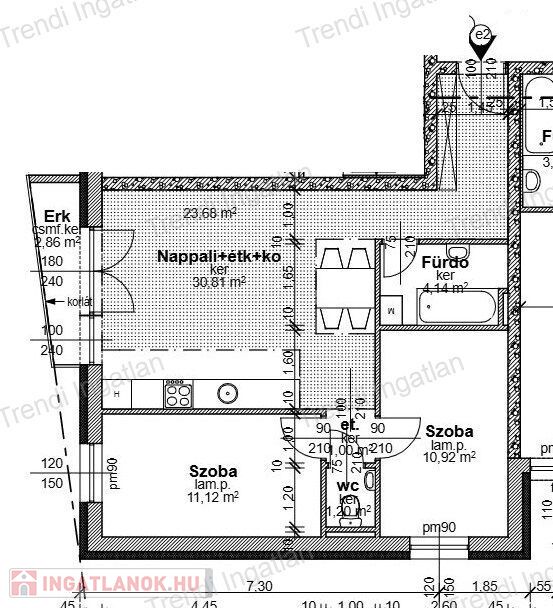
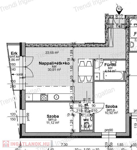
Győr-Belvárosától pár perces autóútra, Szitásdomb új kialakítású részén új építésű 29 lakásos társasházban nappali + 2 szobás lakás eladó.

Az 1. emeleten található 59,20 nm-es ingatlanban amerikai konyhás nappali, 2 szoba, fürdőszoba, külön WC, közlekedő, előtér kerül kialakításra. A nappaliból 2,86 nm-es erkély nyílik. 

Az ingatlan fűtéskész ára: 57.990.000 Ft. Kulcsrakész befejezés kérhető.

Gépkocsibeálló ára: 1.700.000 Ft

Lehetőség van tároló vásárlására is, ára: 1.500.000 Ft-tól.

A társasház Szitásdomb új lakóparkjában épül. A földszinti lakások terasszal, az emeleti lakások erkéllyel/terasszal rendelkeznek. A társasház zárt udvarán felszíni parkolók kerülnek kialakításra. A társasház 30 cm-es falazóelemből, 20 cm-es homlokzati hőszigeteléssel épül. A műanyag, hőszigetelt nyílászárók 6 légkamrásak, 3 rétegű üvegezéssel rendelkeznek. Az ár tartalmazza a redőny előkészítését lefutókkal, az elektromos kiépítés felár ellenében kérhető. A társasház fűtését hőszivattyú biztosítja. Lakásonként egyedi hőmennyiségmérő, a fürdőszobában törölközőszárító radiátor kerül. Klímakiépítés igény esetén felár ellenében kérhető.

A társasház átadásának tervezett időpontja: 2026 nyár

Bővebb információkért keressen bizalommal!

Hétköznap és hétvégén is várom hívását!

A hirdetésben feltüntetett képek illusztrációk.

Dati di Appartamento

1° piano

Mattone

Non é stato fornito

Ottimo/a

Tutti i comfort

Di nuova corstuzione

60 metri quadrati

Non é stato fornito

Non é stato fornito

Non é stato fornito

Non é stato fornito

Fotografie