Testo tradotto
Testo originale
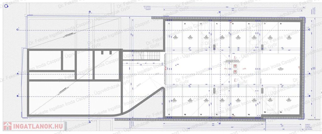
Győr egyik legkeresettebb városrészében, Nádorváros dinamikusan fejlődő környezetében kínálunk megvételre egy új építésű, 15 lakásos társasház egyik kiváló adottságú lakását.
A lakások 30 %-a már elkelt. NE MARADJ LE! Fűtéskész értékesítés.
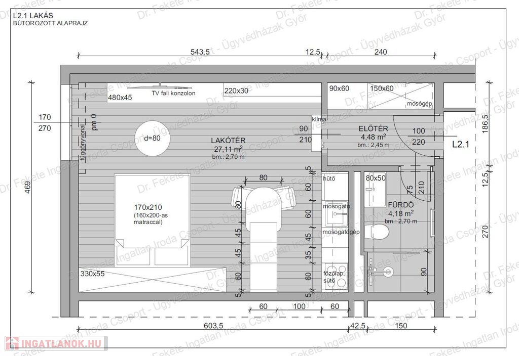
A 2. emeleten elhelyezkedő, DK-i tájolású, franciaerkélyes, 35,76 nm-es garzonlakás tökéletes választás:
– első lakásnak,
– kiadásra (albérlet / rövid táv),
– vagy értékálló befektetésként.
Világos, élhető tér – alacsony rezsivel
A DK-i fekvésnek köszönhetően a lakás egész nap világos, míg az A / A+ energetikai besorolás garantálja az alacsony fenntartási költségeket – ami ma már nem extra, hanem elvárás.
Műszaki tartalom – ami hosszú távon számít
✔ 3 rétegű hőszigetelt műanyag nyílászárók
✔ Redőny előkészítés
✔ 20–30 cm vasbeton teherhordó szerkezet
✔ 20 cm kőzetgyapot homlokzati hőszigetelés
✔ Intenzív zöldtető rendszer
✔ Közösségi tetőterasz
✔ Többrétegű talajnedvesség elleni szigetelés
Gépészet:
✔ Központi gázkazán (2 db)
✔ Padlófűtés – modern komfort
✔ Elektromos törölközőszárító - kiállás
✔ Klíma előkészítés - opcionális, külön fizetendő
Extra lehetőségek (limitált darabszám!)
– Mélygarázs beálló: 8,5 M Ft / db (16 db)
– Tároló (2–2,59 nm): 1,75 M Ft / db (6 db)
Átadás: Fűtéskész állapotban, tervezetten 2027-ben
Miért most érdemes lépned?
– Új építés → nincs felújítási kockázat
– Nádorváros → stabil, könnyen kiadható lokáció
– Kis méret → magas hozam, gyors bérbeadás
– Korai foglalás → jobb ár és választék
Ne csak gondolkodj rajta – foglald le most, és biztosítsd a helyed Győr egyik legígéretesebb projektjében!
A képek és látványtervek az értékesítést szolgálják, illusztrációk.
2° piano
Mattone
Non é stato fornito
Ottimo/a
Tutti i comfort
Di nuova corstuzione
36 metri quadrati
Non é stato fornito
Non é stato fornito
Non é stato fornito
Non é stato fornito
Cerchi nella nostra banca dati una semplice casa, appartamento, ufficio, garage, lotto o qualsiasi altro immobile!
Il dominio Immobiliare.hu é membro del Real Estate Group.
Immobili in vendita in Ungheria - Immobiliare.hu © 2026 Tutti i diritti riservati