Testo tradotto
                                                    
                            Testo originale
                            Az Openhouse Komárom Ingatlaniroda kínálatában eladó a #170704 hivatkozási számú komáromi társasházi lakás.   Amennyiben Ön új építésű lakás vásárlásán gondolkodik, NE döntsön amíg ezt a lehetőséget nem nézte meg!!!
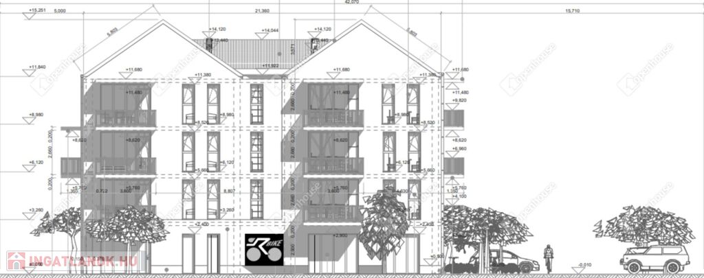
Komáromban épülő új 15 lakásos társasház mely mely 43nm-67nm-es kialakításúak,, 15 tároló egységgel, erkéllyel (egy lakás két erkéllyes kivitelezésű) és kültéri térfelszíni gépjármű parkolóval tervezett ingatlan a város központhoz közeli zöldövezeti részén helyezkedik el.
Építészeti tervek szerint az új modern építőanyagoknak, korszerű fűtésrendszernek, a kiváló hőtechnikai jellemzőknek köszönhetően alacsony rezsiköltség várható.
A garzon lakástól a két hálószobás otthonokig itt minden vásárlói igényt kielégítő társasházi lakást megtalál.
 
Az eladó új építésű komáromi társasházi lakás jellemzői:
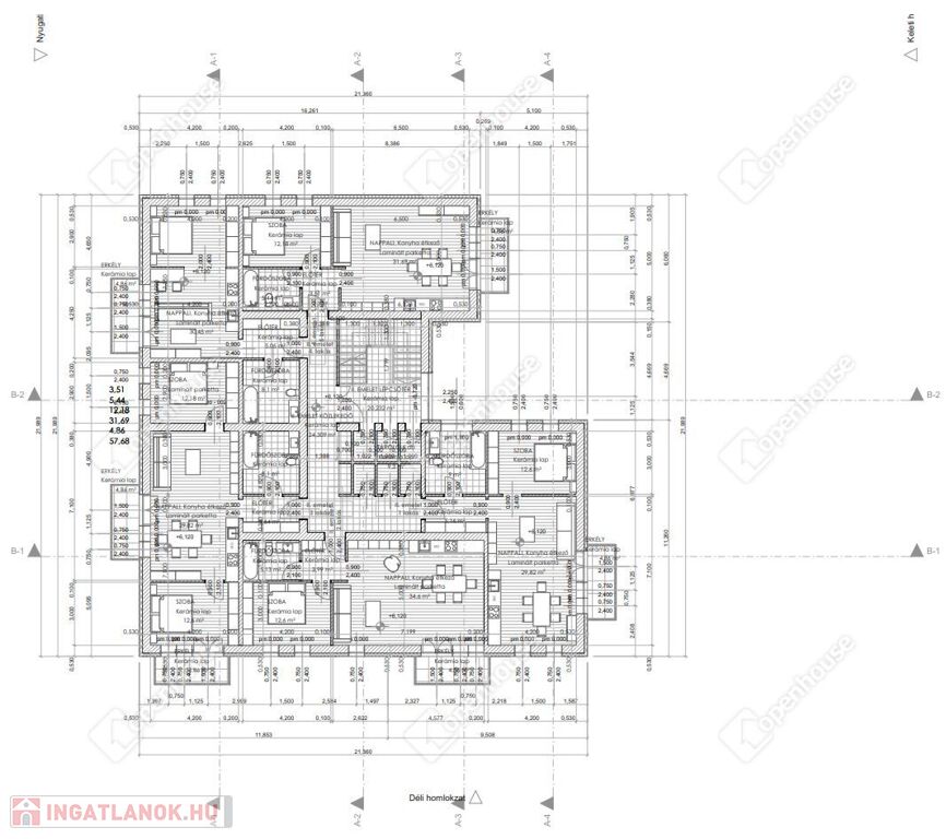
- tervrajzi megjelölés: P/2 (l.-2.lakás)
- építés éve: 2024.
- fekvése:
- lakás alapterülete: 56.32m2
- erkély alapterülete: 4.86m2
- tároló: 1.5m2
Belső elrendezése: előtér, nappali-konyha-étkező, hálószoba, fürdőszoba, erkély.
 
Az eladó új építésű komáromi társasházi lakás leírása:
Alapozás:
- az épület alapozása a mértékadó terhek szerint méretezett kútalapozás
- alapozási mélység statikai méretezés szerint -3,00 m
Tartószerkezet:
- az épület teherhordó szerkezete a földszinti épületrészen 38,00 cm égetett kerámia falazóelemek VB pillér merevítésekkel
- merevítő vasbeton pillérek elhelyezése statikai tervnek megfelelően.
- az épület további szintjeinek teherhordó szerkezete 38,00 cm égetett kerámia falazóelem
- az épület szintközi födémjei vasbeton szerkezetek
- a vasbeton födémek vastagsága és vasalása statikai tervnek megfelelően
- az épület szintjei közötti téráthidaló lépcsői vasbeton szerkezetek
- a vasbeton lépcsők kialakítása és vasalása statikai tervnek megfelelően
Homlokzat:
- homlokzatkialakítás homlokzati hőszigetelés DRYVIT rendszerrel CEMIX homlokzati színvakolattal
Válaszfalak:
- az épületben válaszfalak kialakítása 10,00 cm POROTHERM válaszfallap rendszerrel történik
- a válaszfalak egységesen 10,00 cm vtg. falazott falak
- az épületben a lakáselválasztó falak kialakítása 20,00 cm BAKONYTHERM Zaj Stopp 20 N + F hanggátló téglával történik
- a helyiségek glettelt, festett falburkolattal lesznek kialakítva
Padlóburkolatok:
- fürdőszoba: kerámia lap, erkély: fagyálló kerámia, a lakások egyéb helyiségei: laminált parketta
Nyílászárók:
- az nyílászárók 3 réteg hőszigetelő üvegezésű REHAU műanyag profilrendszerű szerkezetek
- üvegezés U minimum 1,1 W/m2K, teljes nyílászáró U minimum 1,4 W/m2K
- belső ajtók: furatolt faforgácslap ajtók átfogókkal, festett kivitelben
Fűtés, meleg víz:
- az épületben a fűtést, levegő-víz hőszivattyús rendszer biztosítja mely padló fűtést és fan-coilokat működtet
Elektromos ellátás:
- áramellátás 1x32 A nappali, H tarifa a hőszivattyú részére villamos hálózat kapcsolókkal és dugaljakkal épül, lámpa előkészítés készül
Tető és víz elvezetés:
- a tetőfedés anyaga hagyományos cserépfedés Terrán Zenit Mars ClimaControl cserép és kiegészítői a szükséges lécezés, ellenlécezés és fóliázás kialakításával Terrán Zenit Mars ClimaControl TÉGLA színben
- az esővíz külső elvezetésű, az esőcsatorna rendszer PREFA rendszerű négyszög keresztmetszettel
- PREFA P. 10. matt világosszürke alumínium négyszögszelvényű ereszcsatorna 400
Gyengeáramú szerelés: - kaputelefon hálózat, TV hálózat, internet hálózat szolgáltató PICK-UP Kft.
Parkolás:
- vásárolható térkő felületű térfelszíni beálló (lakásonként 1db.)
A MEGADOTT ÁR KULCSRAKÉSZ ÁLLAPOTBAN ÉRTENDŐ. 
Ingatlan ára: 50.688.000 Ft
Tároló ára: 1.350.000 Ft
Erkély: 4.374.000 Ft
Parkoló ára: 1.500.000 Ft
Összesen: 58.146.000 Ft
 
Közelben megtalálható élelmiszer bolt, bölcsőde, óvoda, közintézmények, általános és középiskola, illetve pár perces gyaloglásra buszmegálló.
Az M1-es autópálya, a Magyar-Szlovák határátkelő valamint az 1-es számú főútvonal néhány perc alatt elérhető.
 
Érdeklődés esetén, bővebb információkért  várom szíves jelentkezését,
Velenceiné Kinga
Kiemelt ingatlanértékesítő Ha felkeltette érdeklődését ez az eladó komáromi társasházi lakás, vagy bármely más társasházi lakás és bővebb információt szeretne, keressen bizalommal.Hivatkozási szám: #170704Az Openhouse Komárom Ingatlaniroda tagjaként várom Önt az országos hálózatunk teljes kínálatával.A társasházi lakás vásárláshoz hitelt igényelne? Ingyenes hitelközvetítéssel segít Önnek bankfüggetlen hitelszakértőnk.További szolgáltatásainkkal (pl. értékbecslés, energetikai tanúsítvány, jogi háttér) is segítjük Önt a vásárlásban.Az otthon érték. Az ingatlan üzlet.
Referencia szám: 170704                        
1° piano
Mattone
Pompa di ricircolo (sistema di riscaldamento chiuso a pressione)
In costruzione
Non é stato fornito
Di nuova corstuzione
57 metri quadrati
Non é stato fornito
Non é stato fornito
Non é stato fornito
Non é stato fornito
 
                Cerchi nella nostra banca dati una semplice casa, appartamento, ufficio, garage, lotto o qualsiasi altro immobile!
Il dominio Immobiliare.hu é membro del Real Estate Group.
Immobili in vendita in Ungheria - Immobiliare.hu © 2025 Tutti i diritti riservati