Appartamento vendesi, Komárom

Pagina principale » Appartamento vendesi, Komárom » Appartamento vendesi, Komárom

30 800 000 Ft

€86 349
Dati dell'inserzionista

Mlinkovics Mónika

Scrivi messaggio
Il messaggio deve contenere almento 10 caratteri.
Descrizione

Testo tradotto

Testo originale

ELADÓ ÚJÉPÍTÉSŰ LAKÁSOK KOMÁROMBAN!

A lakópark a közúti forgalom elől elzárt hatalmas zöld területen helyezkedik el ennek köszönhetően élhető környezetet biztosít az ott lakóknak!


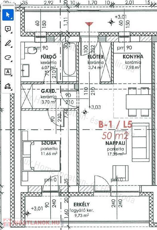
A Lux Ingatlaniroda Komárom kínálatából 182501133 számon eladó Komárom, téglalakás jellemzői:


Komáromban a Mártírok útján újonnan kialakított lakóparkban lakások bevezető áron leköthetőek.

A Gyermek Város Lakóparkban "A" "B" "C" épület típusok helyezkednek el. 

Épület típusonként a kínálatban található erkélyes, loggiás, tetőteraszos, és saját kerttel rendelkező lakás is.

A lakások mérete: 30 nm-től , 45 nm-ig.

SZERKEZETKÉSZ ÁLLAPOTBAN BEVEZETŐ ÁRON!!!: 700.000.-Ft/nm!!!

Nagy számban kerülnek kialakításra gépkocsi beálló helyek is, melyek opcionálisan megvásárolhatóak: 1.500.000.-Ft/db áron.


Amennyiben a Lux Ingatlaniroda által kínált hirdetés felkeltette az érdeklődésed, keress bizalommal! Kollégáim díjmentes és bankfüggetlen hitelügyintézéssel állnak rendelkezésedre.

Lux Ingatlan - Számolj velünk

Dati di Appartamento

Non é stato fornito

Mattone

Non é stato fornito

Ottimo/a

Non é stato fornito

Non é stato fornito

44 metri quadrati

Non é stato fornito

Non é stato fornito

Non é stato fornito

Non é stato fornito