Appartamento vendesi, Kozármisleny

Pagina principale » Appartamento vendesi, Kozármisleny » Appartamento vendesi, Kozármisleny

86 200 000 Ft

€226 039
Dati dell'inserzionista

Berta Tamás

Scrivi messaggio
Il messaggio deve contenere almento 10 caratteri.
Descrizione

Testo tradotto

Testo originale
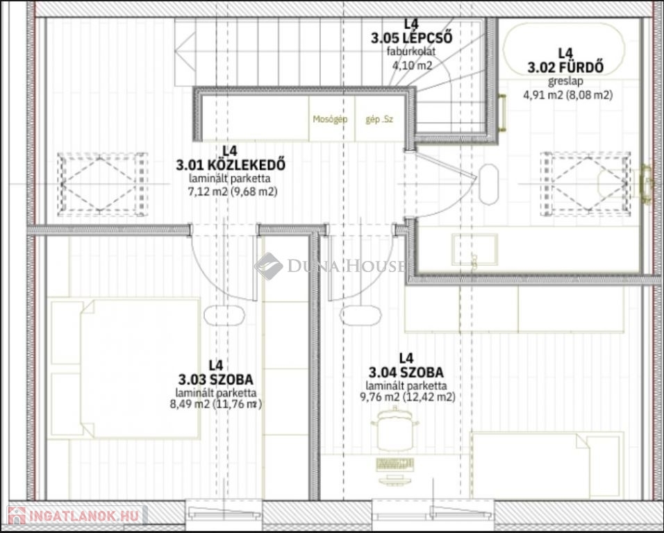
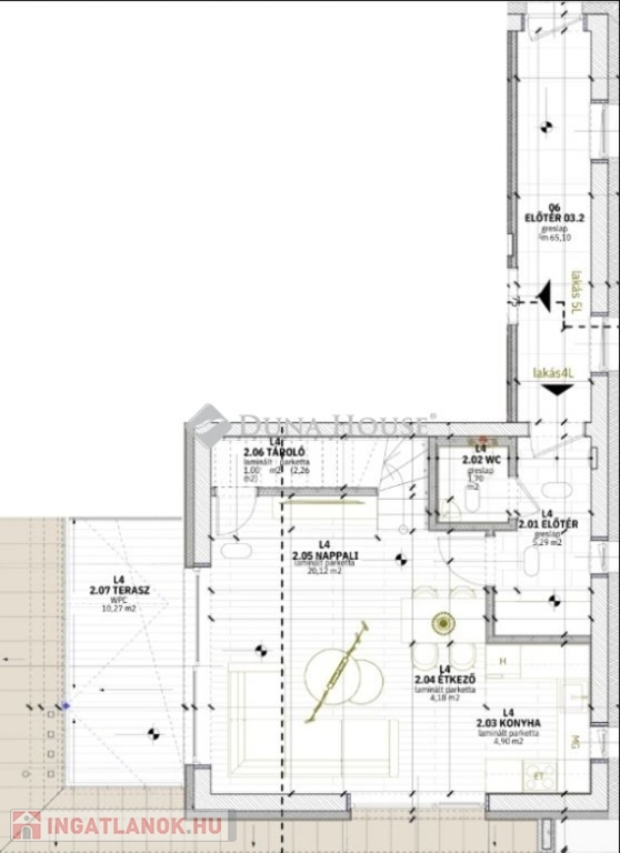
Kozármisleny folyamatosan fejlődő új részén 8 lakásból álló épületben modern, új építésű lakások eladók!Első emeleti belső kétszintes lakás nappali-konyha -étkező, 2 szobás teraszos lakás, saját autó beállóval eladó!4. Lakás első emeleti 77/96m2 helyiség lista:- Nappali- Konyha- Étkező- Terasz 10,27m2- Külön WC helyiség-Tároló helyiségTetőtér:- 2 db szoba- FürdőszobaA lakópark modern, energiahatékony rendszerekkel épül, tökéletes harmóniát képez a természettel.A lakások kényelmes, modern, funkcionális elrendezéssel, szép panorámával, magas, prémium minőségű anyagok felhasználásával csábítják új lakóikat.Minden lakáshoz díjmentes parkolóhely tartozik, a földszinti lakások saját kerttel, az emeleti lakások terasszal rendelkeznek.Az L alakú épület egy védett közösségi teret ölel körül, ahol egy közös park kerül kialakításra. Ez a védett közösségi tér az igények szerint alakítható. Lehet találkozási pont, akár medence és játszótér is megvalósítható erre a területre.A környezet kisgyermekes családok részére is biztonságos, sebességkorlátozott övezet, a közelben új óvoda, kiváló iskola is várja a gyerekeket.Műszaki tartalom:- 30cm X-Therm vázkerámia falazó-blok, 12cm grafitos hőszigetelés- 30cm födém szigetelés- Hőszigetelt műanyag nyílászárók- Földszinti gépházban kialakított hőszivattyús padlófűtésrendszer és lakásonként fan-coil gyors felfűtésre és hűtésre alkalmas rendszer, HMV körben kialakított használati melegvíz cirkulációs rendszer- Konyhákban, fürdőszobákban, Wc-ben kialakított szellőztetőrendszer közvetlenül a szabadba vezetveAz épületben még több lakás elérhető, érdeklődjön a lakások után!

Dati di Appartamento

1° piano

Mattone

Non é stato fornito

In costruzione

Non é stato fornito

Di nuova corstuzione

96 metri quadrati

Non é stato fornito

Non é stato fornito

Non é stato fornito

Non é stato fornito

Mappa