Appartamento vendesi, Salgótarján

Pagina principale » Appartamento vendesi, Salgótarján » Appartamento vendesi, Salgótarján

26 400 000 Ft

€68 843
Dati dell'inserzionista

Illés Rozália

Scrivi messaggio
Il messaggio deve contenere almento 10 caratteri.
Descrizione

Testo tradotto

Testo originale
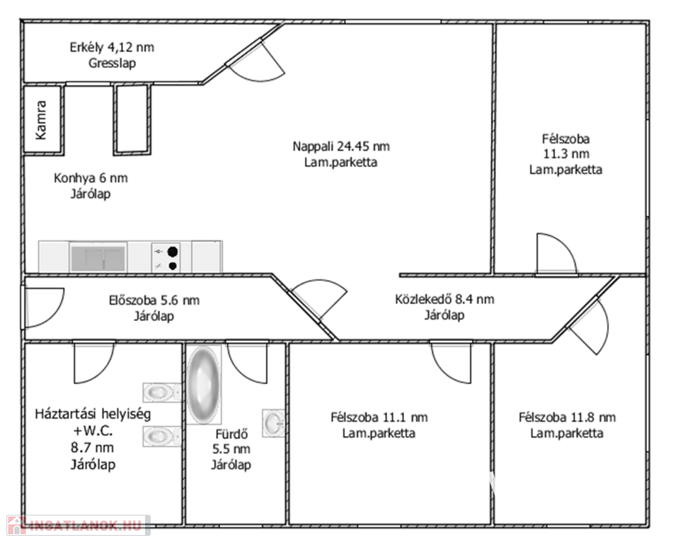
Eladásra kinálom szeretett otthonunkat Salgótarjánban, (Vásártér), 1999-ben épült, kiváló állapotú, kelet-nyugati tájolású, 98 nm-es, 4. emeleti, 1+3 félszobás, tehermentes lakás eladó!

Ritkán elérhető ilyen állapotú, ilyen méretű belvárosi lakás! Használja ki a lehetőséget!

Az ingatlanban 1 szoba (nappali), 3 félszoba, fürdőszoba, külön nyíló W.C., konyha, kamra, közlekedő, előszoba, erkély található.

A fűtést és a meleg víz ellátást gázos kombi cirkó kazán biztosítja.

A lakás egyedi tervek alapján, a társasház tetőterének beépítésével került kialakításra 1999-ben.

Méretéből, tagolásából adódóan nagyobb családok, fiatal házasok ideális választása lehet (CSOK igényelhető 4 gyerekre!).

A lakás felett található tágas padlás kiváló tárolási lehetőséget biztosít.

Igény esetén a nappaliba kéménybe kötött kandalló beépíthető, ezáltal fokozva a komfortérzetet.

A külső szigeteléssel ellátott társasház, az egyik legrendezettebb a környéken, lakói barátságosak, összetartó

A városközpont 5 percen belül gyalogosan elérhető, buszmegálló, vasútállomás, orvosi rendelő, SPAR, piac 200 méteren belül található.
Budapestre óránként mennek ill. jönnek a buszok, ami 100 percet vesz igénybe.

Dati di Appartamento

Non é stato fornito

Non é stato fornito

Non é stato fornito

Non é stato fornito

Non é stato fornito

Non é stato fornito

98 metri quadrati

Non é stato fornito

Non é stato fornito

Non é stato fornito

Non é stato fornito