Testo tradotto
Testo originale
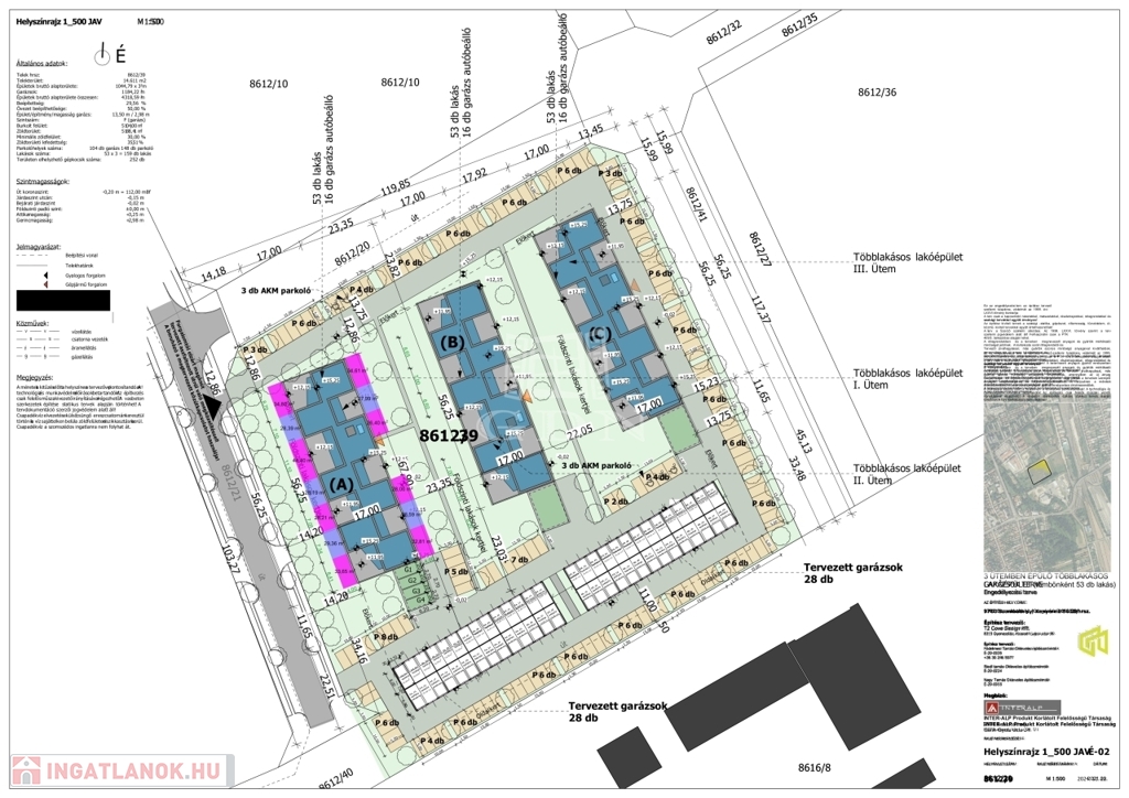
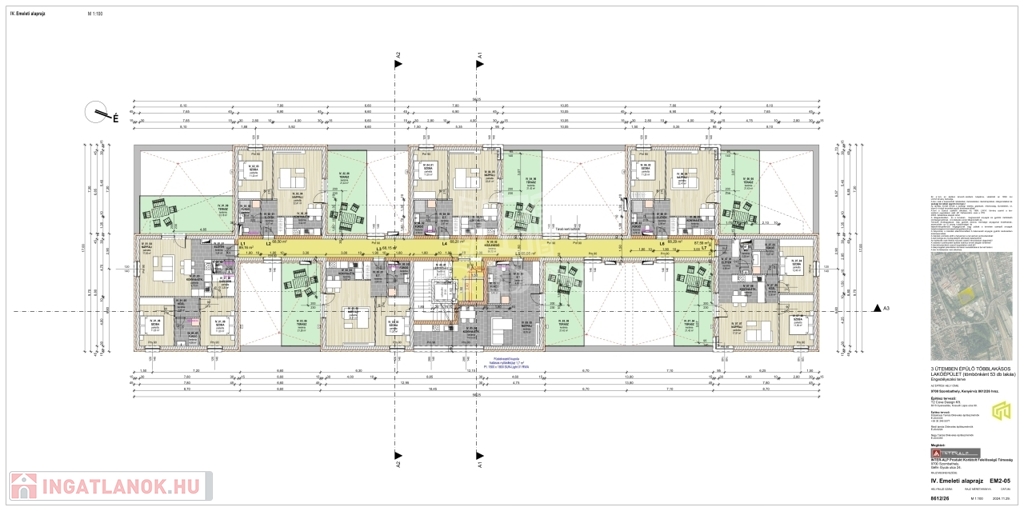
Szombathelyen, jó infrastruktúrával rendelkező Joskar Ola városrészen, modern, 58 lakásos tégla építésű társasházban, magas műszaki tartalommal épülő lakásokat kínálunlk eladásra. Az ingatlanok 36-66 m2 nagyságúak, nappali+1, illetve nappali+2 szobásak, erkélyekkel, teraszokkal. Központi távhős fűtés tervezett, a lakásokban padlófűtéssel egyedi hőmennyiség szabályozással és mérővel.
A használati melegvizet is a távhő központból biztosítják, a fogyasztás
lakásonként egyedi mérővel történik.
Az ingatlanban 1 db 2,5 kw-os hőszivattyús Green vagy azzal egyenértékű típusú klíma kerül felszerelésre. Nyílászárói fokozottan hang-és hőszigeteltek, redőny fogadására alkalmas szemöldökkel. Az épület homlokzatára 15 cm vastag EPS rendszerű szigetelés kerül. A lakásokhoz felszíni parkoló, tároló és garázs is vásárolható. Parkoló 1.8 millió forint, tároló nagyságtól függően 2.2-4.5 millió forint, garázs 10.9 millió forint. Várható átadás 2026 ősze. Ha teljeskörű tájékoztatást szeretne, kérem keressen . Az irodánkban személyes találkozóra van lehetőség. Ha hitere van szüksége, abban is segítünk.
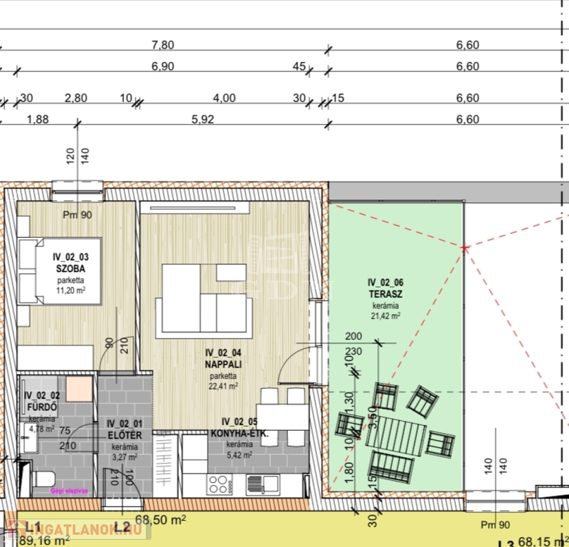
A hirdetésben szereplő lakás : 4/2 52.100.000 Ft. Az ÁFA visszaigényelhető.
Az ingatlan alapterülete 47.05 m2, 21.28 m2 terasszal..
4° piano
Mattone
Riscaldamento centralizzato della casa (con misuratore singolo)
Ottimo/a
Tutti i comfort
Di nuova corstuzione
47 metri quadrati
Non é stato fornito
Proprio/a
Non é stato fornito
della strada
Cerchi nella nostra banca dati una semplice casa, appartamento, ufficio, garage, lotto o qualsiasi altro immobile!
Il dominio Immobiliare.hu é membro del Real Estate Group.
Immobili in vendita in Ungheria - Immobiliare.hu © 2025 Tutti i diritti riservati