Appartamento vendesi, Szombathely

Pagina principale » Appartamento vendesi, Szombathely » Appartamento vendesi, Szombathely

42 000 000 Ft

€107 585
Dati dell'inserzionista

Berkéné Szűcs Judit

Scrivi messaggio
Il messaggio deve contenere almento 10 caratteri.
Descrizione

Testo tradotto

Testo originale
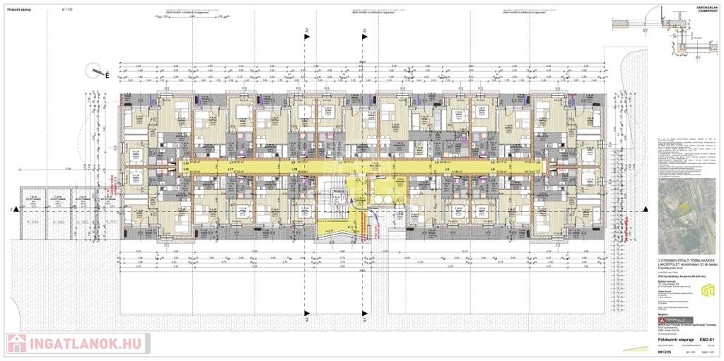
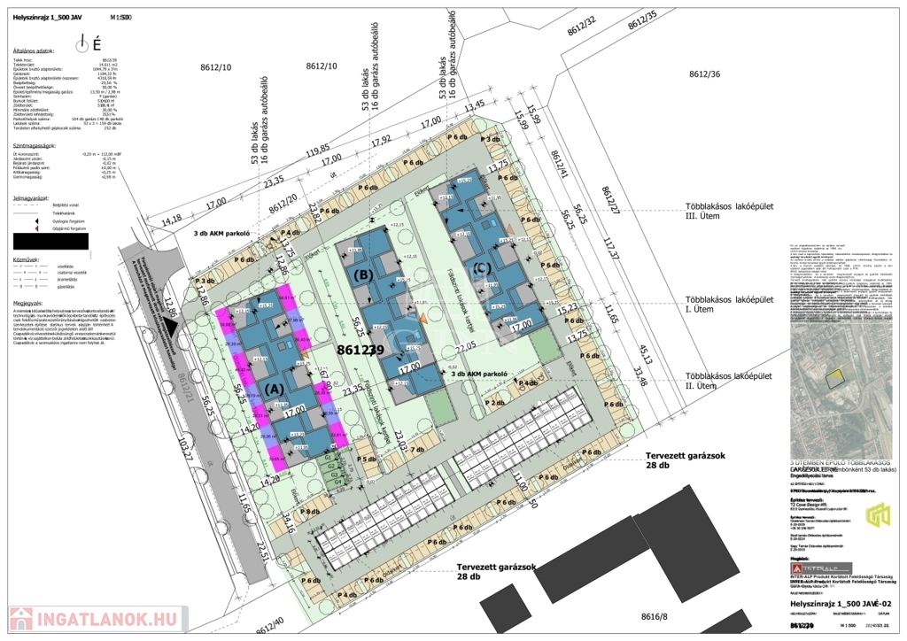
Szombathelyen, jó infrastruktúrával rendelkező Joskar Ola városrészen, modern, 58 lakásos tégla építésű társasházban, magas műszaki tartalommal épülő lakásokat kínálunlk eladásra. Az ingatlanok 36-66 m2 nagyságúak, nappali+1, illetve nappali+2 szobásak, erkélyekkel, teraszokkal. Központi távhős fűtés tervezett, a lakásokban padlófűtéssel egyedi hőmennyiség szabályozással és mérővel.
A használati melegvizet is a távhő központból biztosítják, a fogyasztás
lakásonként egyedi mérővel történik.
Az ingatlanban 1 db 2,5 kw-os hőszivattyús Green vagy azzal egyenértékű típusú klíma kerül felszerelésre. Nyílászárói fokozottan hang-és hőszigeteltek, redőny fogadására alkalmas szemöldökkel. Az épület homlokzatára 15 cm vastag EPS rendszerű szigetelés kerül. A lakásokhoz felszíni parkoló, tároló és garázs is vásárolható. Parkoló 1.8 millió forint, tároló nagyságtól függően 2.2-4.5 millió forint, garázs 10.9 millió forint. Várható átadás 2026 ősze. Ha teljeskörű tájékoztatást szeretne, kérem keressen . Az irodánkban személyes találkozóra van lehetőség. Ha hitere van szüksége, abban is segítünk.
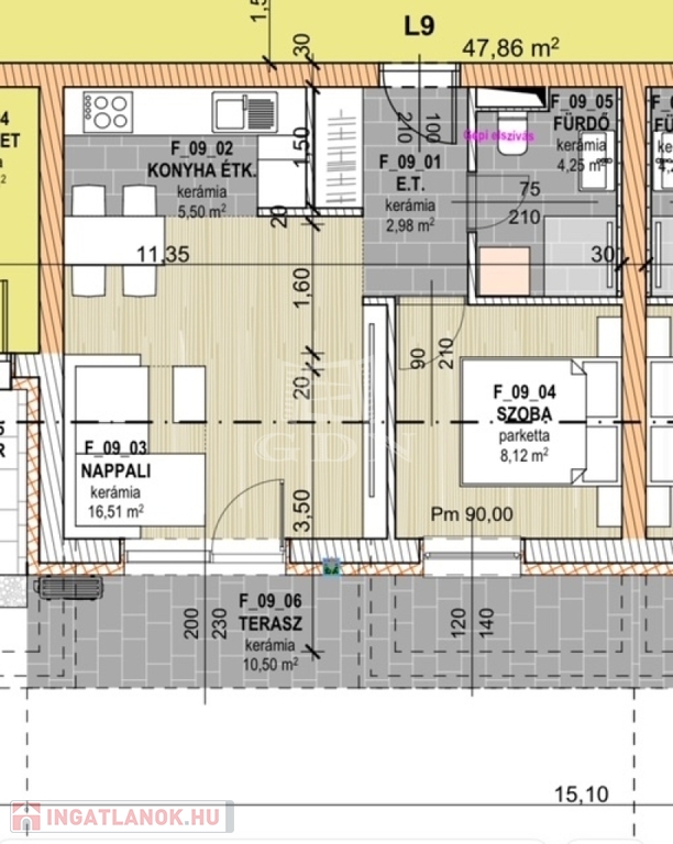
A hirdetésben szereplő lakás : Fsz.9. 42.000.000 Ft. Az ÁFA visszaigényelhető.
Az ingatlan alapterülete 37.36 m2, 11 m2 erkéllyel.

Dati di Appartamento

Pianterreno

Mattone

Riscaldamento centralizzato della casa (con misuratore singolo)

Ottimo/a

Tutti i comfort

Di nuova corstuzione

37 metri quadrati

Non é stato fornito

Proprio/a

Non é stato fornito

della strada

Mappa