Appartamento vendesi, Tata

Pagina principale » Appartamento vendesi, Tata » Appartamento vendesi, Tata

159 900 000 Ft

€416 536
Dati dell'inserzionista

Kotró Anett

Scrivi messaggio
Il messaggio deve contenere almento 10 caratteri.
Descrizione

Testo tradotto

Testo originale
Minden igényt kielégitő, luxus ingatlan Tatán!
Szavak helyett beszéljenek a valóságot mutató képek! ;)

És amit a képek nem tudnak átadni:

-építés éve: 2021 (tégla)
-20 cm szigetelés
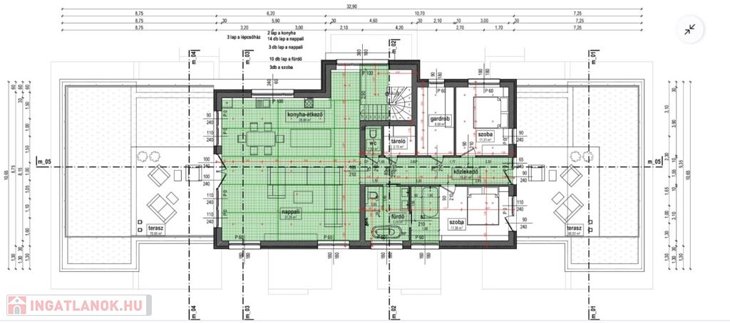
-alapterület: 148 m2
-3 rétegű ablakok
-2 hálószoba, 1 gardróbszoba, mosókonyha, tároló, külön fürdőszoba és mellékhelyiség, nappali, konyha, étkező egy légtérben.
-terasz alapterület: 70 m2 és 59 m2
-hőszivattyú
-mennyezeti hűtés-fűtés és padlófűtés
-300 literes meleg víz tartály
-olasz fiandre kőporcelán burkolatok
-ledes világítások
-Electrolux beépített konyhagépek (konyhaszigetbe rejtett indukciós főzőlap)
-hátulról megvilágítható led fényes tv fal, hangulatos, rejtett led világítások
-teraszokon kerti csap, szauna és jacuzzi előkészítés, áram és meleg víz
-közforgalom elől elzárt, magánútról megközelíthető
-lakáshoz tartozó parkolók száma: 5
-közös költség: 6500 forint
-a bútorok az ár részét képezik

Az ingatlan irányára: 159.9 MHUF

Részletekkel, megtekintéssel kapcsolatban keress bizalommal!
Tel.: +3620 237 5558

Dati di Appartamento

1° piano

Mattone

Non é stato fornito

Ottimo/a

Comfort di lusso

di 1-5 anni

148 metri quadrati

Complesso residenziale

Proprio/a

Ammobiliato/a

Panoramico/a