Casa vendesi, Bátaszék

Pagina principale » Casa vendesi, Bátaszék » Casa vendesi, Bátaszék

19 900 000 Ft

€55 791
Dati dell'inserzionista

Dániel Lilla Anna

Scrivi messaggio
Il messaggio deve contenere almento 10 caratteri.
Descrizione

Testo tradotto

Testo originale
A családi ház jelenleg üzletházként van nyilvántartva, de a tulajdonos elindította az átminősítését lakóházzá, hogy lakáshitelt is lehessen felvenni rá.
A ház a központhoz közel, csendes helyen található.
A falazata vegyes. A tető héjazata cserép.
A nagy belmagasság miatt tágasak, világosak a terek.
Nagy betonozott udvar és zöldterület is tartozik hozzá.
A nyílászárók az eredeti fa szerkezetek.
Fűtése gáz-központi fűtés, a meleg vizet villanybojler állítja elő.
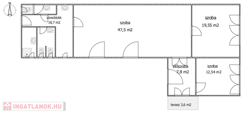
Az ingatlan közepén egy több, mint 40 m2-es helyiség található, amely igény szerint használható nappali-étkező-konyhának, vagy felosztható kisebb helyiségekre.
A házban az eredeti( üzleti) funkciónak megfelelően nagy vizesblokk került kialakításra.
Az udvarban 2 autó tárolására is alkalmas betonozott garázs található.
Energetikai tanúsítvány elkészítése folyamatban.

Akár üzleti, akár lakáscélra megfelel az Ön igényeinek, hívjon, és megmutatom!

Kedves Ügyfelünk, az ingatlanról videót is készítettünk. Ha ezt a hirdetést az Otthon Centrum weboldalán nézi, akkor a videóra a képek után tud kattintani. Ha egy másik weboldalon találta ezt a hirdetést, kérem nyissa meg az Otthon Centrum weboldalát, kattintson a „Regisztrációs szám keresése” menüpontra, és írja be ezt a regisztrációs számot a keresőbe: H501212 Itt meg tudja tekinteni az ingatlanról készült videót. Vagy írjon nekem, és szívesen elküldöm a videót.

családi ház 3 szoba nagy terek vegyes falazat garázs nagy telek gázfűtés OC H501212

Dati di Casa

109 metri quadrati

1 033 metri quadrati

Medio/a

Casa unifamiliare

Non é stato fornito

Pompa di ricircolo (sistema di riscaldamento chiuso a pressione)

Non é stato fornito

Non fornito!

Non fornito!

Non é stato fornito

Non é stato fornito

Non é stato fornito