Testo tradotto
                                                    
                            Testo originale
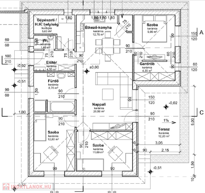
                            Eladó Bicske kertvárosi részén egy földszintes, nettó 92,28 nm-es családi ház a hozzá tartozó 500 nm-es telekkel, különálló dupla garázzsal!
Nappali + 3 hálószoba (9,10,12 nm), fürdőszoba WC-vel + külön WC.
Műszaki paraméterek:
30-as Ytong falazat rajta 10 cm dryvit szigeteléssel
Beton tetőcserép
3 rétegű műanyag fehér nyílászárók
Minden helyiségben padlófűtés hőszivattyús rendszerrel
H-tarifás villanyóra
Elektromos redőny illetve klíma előkészítés
A telek osztott tulajdonú, társasházi alapító okirattal kerül átadásra. Különálló épület, megközelítése nyélen keresztül történik.
Burkolatok szabadon választhatók. Használatbavételi engedély előre láthatóan 2026 márciusára várható.
A ház megfelel az új CSOK Plusz feltételeinek, illetve igénybe vehető rá a az Otthon Start hitel is, így különösen jó lehetőség azoknak, akik saját elképzeléseik alapján szeretnék kialakítani otthonukat.
Az ingatlan kedvező elhelyezkedése és infrastruktúrája, rendkívül vonzóvá teszi. Több útvonalon is megközelíthető Budapest.
Bankfüggetlen hitel tanácsadónk díjmentesen áll az Ön rendelkezésére! Keressen bizalommal!
A hirdetésben szereplő adatok, információk, képek, alaprajzok stb... tájékoztató jellegűek! Irodánk az esetleges elírásokért felelősséget nem tud vállalni!
Tájékoztatjuk a Tisztelt Érdeklődőket, hogy az ingatlan hirdetésében szereplő telefonszám felhívásával Önök hozzájárulnak személyes adataik (név, telefonszám), a hirdetést feladó Kft. - által a bizalmas kezeléshez és nyilvántartáshoz.
További információért hívjon bizalommal a hét minden napján! Köszönöm, hogy időt szánt hirdetésemre, sikeres ingatlanvásárlást kívánok!                        
92 metri quadrati
500 metri quadrati
Ottimo/a
Casa unifamiliare
Non é stato fornito
Non é stato fornito
Non é stato fornito
Non fornito!
Non fornito!
Non é stato fornito
1 piano
Non é stato fornito
                Cerchi nella nostra banca dati una semplice casa, appartamento, ufficio, garage, lotto o qualsiasi altro immobile!
Il dominio Immobiliare.hu é membro del Real Estate Group.
Immobili in vendita in Ungheria - Immobiliare.hu © 2025 Tutti i diritti riservati