Casa vendesi, Budapest II distretto

Pagina principale » Casa vendesi, Budapest II distretto » Casa vendesi, Budapest II distretto

350 000 000 Ft

€959 141
Dati dell'inserzionista

Kitzinger Szonja

Scrivi messaggio
Il messaggio deve contenere almento 10 caratteri.
Descrizione

Testo tradotto

Testo originale
KINCS CSALÁDOSOKNAK!
Budapest 2. kerületében, Vérhalom egyik legértékesebb, exkluzív zöldövezeti részén csendes utcában kínálok eladásra egy 212 nm-es, 1 nappali + 4 szobás, kiváló elrendezésű sorházi ingatlant örökpanorámával, 120 nm-es illatos, romantikus kertben, garázzsal és saját kültéri autóbeállóval!

LOKÁCIÓ
2 perc sétára az erdőtől, mégis a város közepén!
Biztonságos, rendezett, csendes környezet, barátságos szomszédság. HOSSZÚTÁVON ÉRTÉKÁLLÓ befektetés.
A közlekedés autóval és gyalogosan is kiváló. Közelben a Rózsakert bevásárlóközpont, játszóterek, óvódák, iskolák, gimnáziumok, patika, orvosi rendelő, több természetvédelmi terület. Néhány perces séta a 11-es/111-es/931-es és a 91-es/291-es buszok megállói. Mindenhez közel jó közlekedéssel, mégis nyugodt, kertvárosi környezetben.
AZ INGATLAN
A sorház 1982-ban épült. Szélső épülete az eladó, saját kertrésszel, nagyon jó elrendezéssel, gyönyörű kilátással egész Budapestre!
A jelenlegi terek és elrendezés, nagyon praktikus, könnyen alakítható, mai napig korszerű. Tágas terek, hatalmas nyílászárók, egész nap világos, csodálatos panorámával rendelkező hangulatos otthon. Rengeteg lehetőséget rejt magában, de kisebb ráfordítással is korszerűsíthető és azonnal beköltözhető.
A hasznos alapterülete 212 nm, az alábbi funkciók szerint praktikus elrendezéssel:
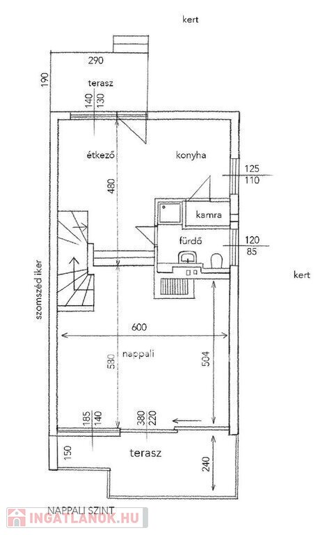
A MAGASFÖLDSZINTEN a nappali szint került kialakításra:
- a fényárban úszó 30 nm-es, erkélykapcsolatos nappali
- étkező terasz- és kertkapcsolattal,
- konyha,
- kamra
- és zuhanyzós fürdőszoba
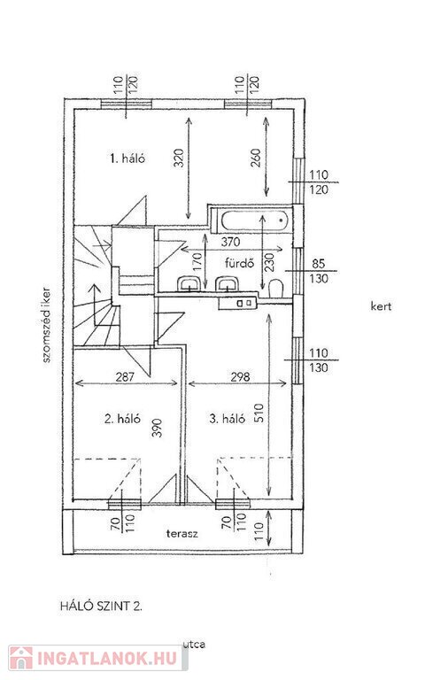
Az EMELETEN a hálószoba szint:
- szülői háló csodálatos panorámával,
- további 2 szoba (15 és 12 nm-es) mindkettő erkélyes, panorámás
- és egy kádas fürdőszoba
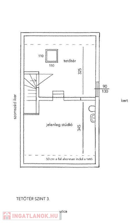
TETŐTÉR: jelenleg stúdió/dolgozószoba és tároló. Szuper tetőtéri lakrész alakítható ki benne, 1 tetőtéri és egy sima ablakkal rendelkezik
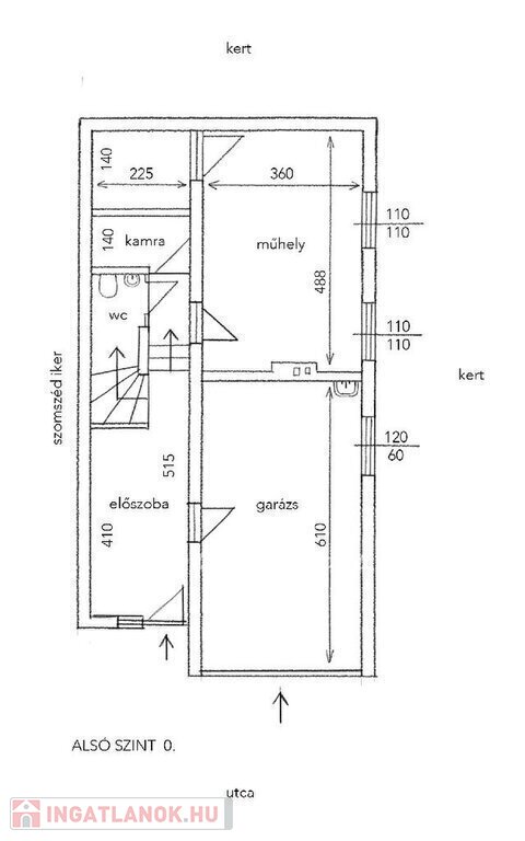
BEJÁRATI SZINTEN található
- az előszoba,
- egy 18 nm-es műhely ami hobbi vagy dolgozószobának is kiváló, illetve a kamrával/mosdóval összevonva pedig kamaszoknak, nagyszülőnek külön lakótérként is kialakítható
- tároló
- wc mosdóval
- garázs
Az ingatlanban 10 éve fűtéskorszerűsítés és kazáncsere történt és azóta is szépen karbantartott otthon, műszaki állapota jó. Nappalijában szép kandalló található, amely a téli esték jóleső hangulatáról is gondoskodik. A sorházi ingatlan riasztóval felszerelt, kertjében öntözőrendszer került kiépítésre. Az ingatlanhoz saját garázs és további 1 autó parkolására alkalmas kijelölt kültéri parkolóhely is tartozik, amely a vételár részét képezi!!!
A sorházi ingatlanban a tulajdonviszonyok rendezettek, a szomszédok intelligens, kedves emberek. Az ingatlan per és tehermentes és azonnal költözhető.

Energetikai tanúsítvány: F

Igazi örömforrás családosoknak!
Ha jó infrastruktúrájú, de csendes, elegáns környéken keres, kertes családi ingatlant, ezt látnia kell!
Kérem, keressen bizalommal és jöjjön nézze meg!

Dati di Casa

212 metri quadrati

120 metri quadrati

Buono/a

Villette a schiera

Mattone

Pompa di ricircolo (sistema di riscaldamento chiuso a pressione)

Gas

Doppio comfort

di 21-50 anni

Non é stato fornito

3 piani

Non é stato fornito

Mappa