Casa vendesi, Budapest XVIII distretto

Pagina principale » Casa vendesi, Budapest XVIII distretto » Casa vendesi, Budapest XVIII distretto

99 000 000 Ft

€256 437
Dati dell'inserzionista

Szilágyi Krisztina

Scrivi messaggio
Il messaggio deve contenere almento 10 caratteri.
Descrizione

Testo tradotto

Testo originale

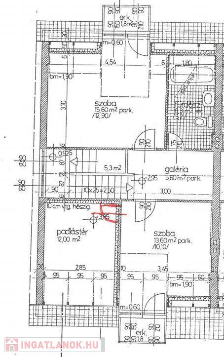
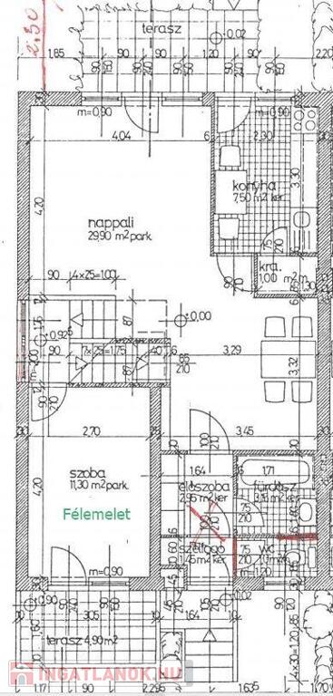
CasaNetWork Ingatlaniroda  kínálatában eladó ikerház Budapest XVIII. kerület kertvárosában. csendes átmenő forgalomtól mentes kis utcában.   Kertvárosias hangulatú, zöldövezeti, a Bókay kert - Gilice tér közelében fekvő kedves családi házat kínálok. 

Az ingatlan kedves otthona lehet családnak, home office-ban dolgozóknak. A különnyíló szobák (3 db) elvonuláshoz, munka végzéshez ,a tágas (30 m2) nappali- étkező családi összejövetelekhez, a tágas, kertre néző  terasz kávézáshoz, relaxálni remek helyszín. A családi ház festés után, akár azonnal költözhető. 

A kert kizárólagos használatú, tökéletes méretű, grillezéshez, gyerekjátszónak, pihenésre, kikapcsolódásra. Jelenleg is gyönyörű örökzöldek ékesítik, még elfér néhány virág, akár pici konyhakert. 

Kisebb autó parkolhat a garázsban, ahonnan a lakótérbe belső lépcsőn felmehetünk. A kertben 2 db tároló tartozik a házhoz.(téglaépítésű, zárható)  

A lakóház műszaki jellemzői: 

  • az építés idejében a legkorszerűbb anyagokat használták fel, és nagy odafigyeléssel  karbantartotta a tulajdonos
  • a szinteltolások izgalmassá teszik a helyiségek elosztását 
  • téglafalazatú épület, tetejét betoncserép fedi, SOFA  nyílászárók kerültek beépítésre
  • egy db hűtő-fűtő klíma van, a fűtést kondenzációs gázkazán biztosítja
  • riasztóval ellátott az épület
  • az áramvezetékek rézbőlkészültek, 1 x 25A ellátás 

Az ingatlan társasházi alapító okirattal rendelkezik, jogilag rendezett, hitellel megvásárolható, és nagyon rövid idő alatt birtokba vehető

A környék ellátottsága kiváló; iskolák, bevásárlási lehetőség, Lőrinci piac, Kormányablak mind gyorsan elérhetőek.  Az Üllői úton elérhető tömegközlekedési pontok a Belváros és a repülőtér irányába is jó megoldást nyújtanak. 

Ingyenes hitel tanácsadással, ügyvédi kapcsolattal és rugalmas időbeosztással állunk kedves ügyfeleink rendelkezésére! CASANETWORK - Ingatlanban otthon vagyunk

Dati di Casa

119 metri quadrati

340 metri quadrati

Buono/a

Case gemelle

Mattone

Pompa di ricircolo (sistema di riscaldamento chiuso a pressione)

Non é stato fornito

Tutti i comfort

Non fornito!

Non é stato fornito

Non é stato fornito

Non ammobiliato/a