Casa vendesi, Budapest XXII distretto

Pagina principale » Casa vendesi, Budapest XXII distretto » Casa vendesi, Budapest XXII distretto

118 000 000 Ft

€305 502
Dati dell'inserzionista

Kalmár Károly József

Scrivi messaggio
Il messaggio deve contenere almento 10 caratteri.
Descrizione

Testo tradotto

Testo originale
ELADÓ ÚJ ÉPÍTÉSŰ IKERHÁZ FÉL!

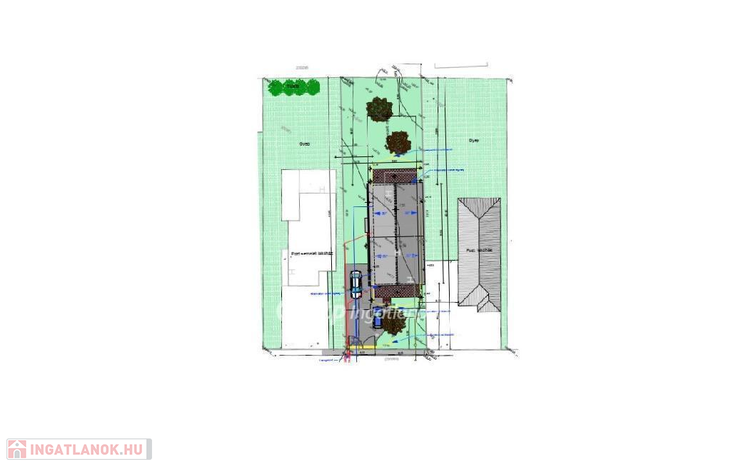
Budapest XXII. kerületében a Baross Gábor telepen kis forgalmú mellékutcában ELADÓ egy újonnan épülő ikerház. Jelen hirdetmény a hátsó házfélre vonatkozik.

Várható átadás: 2025. december.

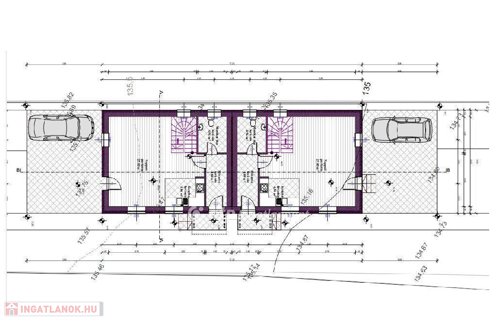
ALACSONY REZSIKÖLTSÉGEK! HŐSZIVATTYÚ + PADLÓFŰTÉS + KLÍMA + H TARIFA! 3 SZOBA + NAPPALI + SAJÁT KERT! + murvázott gépkocsibeálló (1 autó).

80 nm lakóterület +16 nm kerti terasz, a saját használatú kert 270 nm.

A két ikerház egy 538 m2-es telekre épül, társasházi alapító okirattal, saját helyrajzi számmal, elkerített kertrésszel és külön közműórákkal vehetik át az új tulajdonosok.

MŰSZAKI ADATOK: A ház szigetelt, vasbeton sávalapra épül, 30-as Leier tégla főfalakkal, 10-es tégla válaszfalakkal és E gerendás vasbeton födémmel. A homlokzatra 15 cm-es dryvit, a lábazatra 12 cm-es xps, az aljzatra 10 cm-es lépésálló és a födémre 30 cm-es kőzetgyapot szigetelés kerül. Fehér, műanyag, 3 rétegű, hő- és hangszigetelt nyílászárókat építenek be. A fűtésről egy takarékos hőszivattyú gondoskodik, padlófűtés hőleadással, a meleg víz ellátásért egy elektromos vízmelegítő felel. A ház komfortos hőmérsékletét 1 db inverteres, hűtő-fűtő klíma szolgáltatja. A hőszivattyúhoz és a klímákhoz a kedvezményes H tarifás villany elszámolás tartozik, ami a normál tarifás áram áránál sokkal kedvezőbb, 23 Ft/KW, ezért ez a ház a hőszivattyúnak, a H tarifának, a klímáknak és a vastag szigetelésnek köszönhetően nagy kedvező rezsiköltségekkel fenntartható.

A hideg és meleg burkolatok 7.000. Ft/m2, a beltéri ajtók 70.000. Ft/db árig választhatók felár nélkül, a szanitereket is Ön választhatja ki, illetve minden egyéb kérés megvalósítása megbeszélhető a rugalmas kivitelezővel.

CSOK és hitel képes. Az OTP Ingatlanpont egy ablakos kiszolgálással el is intézi Önnek.
Hívjon bátran bemutatási időpontot egyeztetni!

Dati di Casa

80 metri quadrati

270 metri quadrati

In costruzione

Case gemelle

Mattone

Corrente elettrica

Non é stato fornito

Tutti i comfort

Di nuova corstuzione

Non é stato fornito

1 piano

Non é stato fornito

Mappa