Testo tradotto
Testo originale
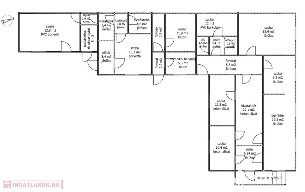
Cereden, 197 m2-es hasznos alapterületű, egyszintes, családi ház eladó. A ház statikailag kiváló állapotú. A tető cseréppel fedett, ácsolata hibátlan. Az ingatlan korábban hivatalként, műszaki állomásként, és szolgálati lakásként működött, ezért több részre szekcionált. A belső burkolatok cserélendők, felújítandók. Az ablakok egy része már új műanyag nyílászáró. Az épület jól variálható belső terekkel rendelkezik, csak a külső főfalai teherhordó falak, ezért belül tetszés szerint átalakítható. Egyaránt kialakítható belőle nagy villalakás, panzió, apartmanház, vagy vadászház. Összközműves, gázkazános központi fűtéssel rendelkezik. Két nagy, 28, és 14 m2-es, száraz pince található alatta. Az udvarra széles kapubejárón keresztül lehet behajtani, több autó tárolására, vagy nagy garázs építésére is megfelelő térrel rendelkezik. A ház mellett egy elbontott melléképület jó állapotú betonalapjára pillanatok alatt telepíthető egy könnyűszerkezetes építmény, fedett grillező, vagy garázs.
Ha felkeltettem az érdeklődését, hívjon a +36 70 423 1304-es telefonszámon!
Cered Nógrád vármegye egyik gyöngyszeme. Közvetlen a Szlovák határon fekszik, határátkelőjén, akár gyalogosan is át lehet menni a Szlovák oldalon lévő Tajti településre.
Salgótarjánból 20 km-es kanyargós, lélegzetelállító panorámájú út vezet a faluba.
A községtől nyugatra, a Medves hegység lábánál ered a községet kelet-nyugat irányba átszelő Tarna. A környező hegyekről a Medves és Szilvás-kő 620 m csúcsán kívül az év nagy részében láthatók a Mátra, a Bükk és a Tátra csúcsai is. Ma már természetvédelmi terület, a Medves hegyei, erdői, változatos geológiai képződménnyei, és az itt élő ritka növény- és állatfajok miatt. A Pípó-pataki tavak jelentős térségi értékek, ahol horgászati lehetőség áll az idelátogatók részére.
Évente egy alkalommal nemzetközi művésztábor várja ide az alkotókat. A faluban két festőművész is él. Működik palóc hagyományőrző asszonykórus, és népi hímző is fellelhető a településen.
Óvoda, iskola, körzeti háziorvosi, védőnői, fogorvosi ellátás, gyógyszertár is van a faluban.
Mindössze 20 km-re található Salgótarjánban a Szent Lázár Megyei Kórház- és Rendelőintézet, mely súlyponti kórházként látja el ezt a területet is.
A községben a közvilágítás, a vezetékes ivóvíz- és szennyvízhálózat, a vezetékes földgázhálózat, a vezetékes telefon és szélessávú internethálózat kiépítése is megtörtént. Szélessávú mobil internet szolgáltatás is elérhető a település egész területén. Az önkormányzati utak szilárd útburkolattal ellátottak. A települési szilárd hulladék hetenkénti elszállítása megoldott, és a szelektív hulladékgyűjtés is biztosított.
(További képekért és információkért kérem hívjon!)
197 metri quadrati
793 metri quadrati
Da rinnovare
Casa unifamiliare
Mattone
Riscaldamento centralizzato della casa (con misuratore singolo)
Non é stato fornito
Non fornito!
Non fornito!
Non é stato fornito
Non é stato fornito
Non é stato fornito
Cerchi nella nostra banca dati una semplice casa, appartamento, ufficio, garage, lotto o qualsiasi altro immobile!
Il dominio Immobiliare.hu é membro del Real Estate Group.
Immobili in vendita in Ungheria - Immobiliare.hu © 2025 Tutti i diritti riservati