Casa vendesi, Debrecen

Pagina principale » Casa vendesi, Debrecen » Casa vendesi, Debrecen

192 000 000 Ft

€506 182
Dati dell'inserzionista

Némethné Zsuzsa

Scrivi messaggio
Il messaggio deve contenere almento 10 caratteri.
Descrizione

Testo tradotto

Testo originale
Debrecentől pár perces távolságra, Pallag irányában, új lakópark épül.
A Nagyerdő közvetlen szomszédságában, nyolcholdas területen, 32 családnak nyújt otthont a lakópark.
A telkek nagysága és elhelyezkedése lehetővé teszi, hogy olyan ingatlanok épüljenek, melyek elsődleges célja:
- természetközeliség
- intimitás
- exkluzivitás
- egyediség
- zárt közösség.
A teljesen közművesített telkeket térkövezett belső útról lehet megközelíteni.
Fekvésének köszönhetően további építkezés a lakóparkon túl nem lesz, ezért nem kell tartania a túlzsúfolt lakókörnyezettől.
Pallagon a pár éve működő Nemzetközi Iskola, óvoda, középiskola lehetőséget nyújt gyermekei számára a tanulás és sport igényeinek.

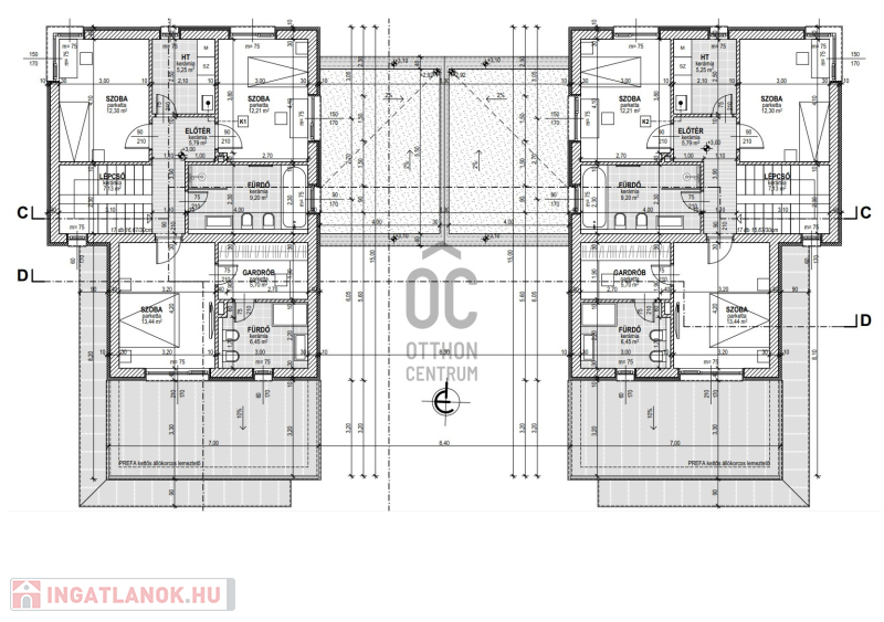
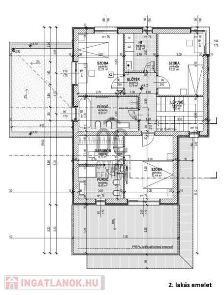
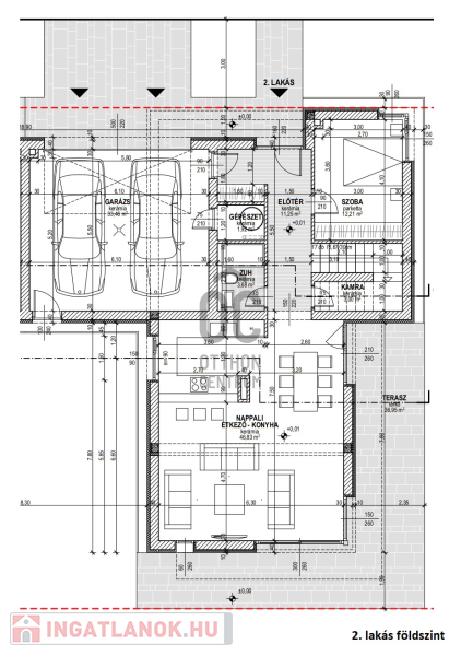
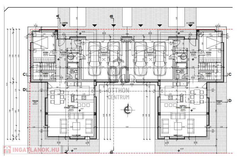
Az ikerházak 2.lakása: 190nm alapterületű, nappali + 4 szobás, 600 nm-es telekrésszel.

Földszint:
- nappali étkezőkonyha kialakítással és kamrával (50 nm) KONYHABÚTORRAL gépek nélkül
- dolgozószoba (12 nm)
- zuhanyzó mosdóval (4 nm)
- gépészet
- dupla gépkocsi beállású garázs (34 nm)
- terasz (40 nm)

Emelet:
- 3 hálószoba
- 2 fürdőszoba
- gardrób
- mosókonyha
- tetőterasz.

Átadás: 2025. február

Illetékmentesség, CSOK-kal kapcsolatos és bankfüggetlen hitelügyintézést banki kollégánk teljeskörűen és ingyen bonyolítja Önnek irodánkban, da akár otthonában is!

Dati di Casa

191 metri quadrati

600 metri quadrati

Ottimo/a

Case gemelle

Non é stato fornito

Pompa di ricircolo (sistema di riscaldamento chiuso a pressione)

Non é stato fornito

Non fornito!

Non fornito!

Non é stato fornito

Non é stato fornito

Non é stato fornito