Casa vendesi, Debrecen

Pagina principale » Casa vendesi, Debrecen » Casa vendesi, Debrecen

165 000 000 Ft

€425 104
Dati dell'inserzionista

Némethné Zsuzsa

Scrivi messaggio
Il messaggio deve contenere almento 10 caratteri.
Descrizione

Testo tradotto

Testo originale
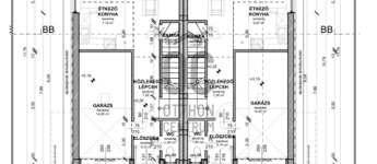
2. lakás: Br. 150 nm

- amerikaikonyhás - étkezős nappali (28 nm)
- teraszkapcsolat (23 nm)
- garázs (15 nm)
- vendégmosdó
- 3 szoba (10-10-9 nm)
- 2 fürdőszoba
- gardrób
- erkélyek (16 nm)
- kertkapcsolat.

Saját kertkapcsolatos otthon várja tulajdonosát 2 szinten.
A földszinten amerikaikonyhás - étkezős nappali terasz és kertkapcsolattal, vendégmosdóval és garázzsal.
Az emeleten 2 gyerekszoba kádas fürdőszobával, míg a szülői háló saját fürdőszobával és gardróbbal felszerelt.

Műszaki tartalma:
- beépített konyhabútor gépesítve (Electrolux)
- vízlágyító berendezés
- elektromos redőnyök és kapuk távirányítós vezérléssel
- hőszivattyús klímák (h-tarifa)
- riasztórendszer
- padlófűtés
- teljes bútorzat.

Tervezzen, jöjjön és nézzen szét új otthonában, ahol már a karácsonyt töltheti!

További részletkért és a megtekintést illetően várom hívását!

Dati di Casa

125 metri quadrati

250 metri quadrati

Ottimo/a

Case gemelle

Non é stato fornito

Pompa di ricircolo (sistema di riscaldamento chiuso a pressione)

Non é stato fornito

Non fornito!

Non fornito!

Non é stato fornito

Non é stato fornito

Non é stato fornito