Casa vendesi, Diósd

Pagina principale » Casa vendesi, Diósd » Casa vendesi, Diósd

134 900 000 Ft

€357 626
Dati dell'inserzionista

Nyegrutz Tibor

Scrivi messaggio
Il messaggio deve contenere almento 10 caratteri.
Descrizione

Testo tradotto

Testo originale
DIÓSD Sashegyi részén, új építésű ingatlanok környezetben lévő, kettő db kétszintes, 124,6 m2 -es alapterülettel rendelkező (113,4 m2 hasznos), 3 szoba + nappali + 2 fürdőszobás ikerház, hőszivattyúval, GARÁZZSAL és terasszal készült ÚJ ÉPÍTÉSŰ IKERHÁZAT kínálunk megvételre.

Az ingatlan egy 758 m2-es telekre került megépítésre.

MINDKÉT LAKÓHÁZ ALAPRAJZA, KIVITELEZÉSE, MŰSZAKI TARTALMA AZONOS!
A lakóházak egymástól elkerítve, külön bejárattal kerültek kialakításra.

Az utcafronti, előkertes ikerházfél (1. számú lakóház) 372 m2-es telekrészen épült, elkerítve a hátsó féltől, garázzsal.

AZ 1. SZÁMÚ LAKÓHÁZ KULCSRAKÉSZ ÁRA : 134,9 millió Ft.

A hátsó ikerházfélhez ( 2.számú lakás) 386 m2-es telekrész tartozik, elkerített kertrésszel, külön bejárattal, garázzsal.

A lakóházakban lévő mindkét garázs térkövezett szolgalmi úton érhető el.

2. SZÁMÚ LAKÓHÁZ KULCSRAKÉSZ ÁRA: 139,9 millió Ft

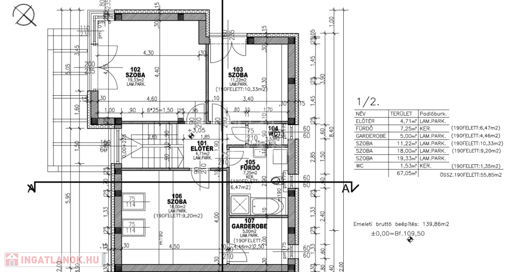
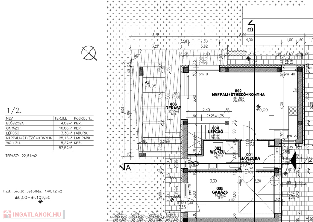
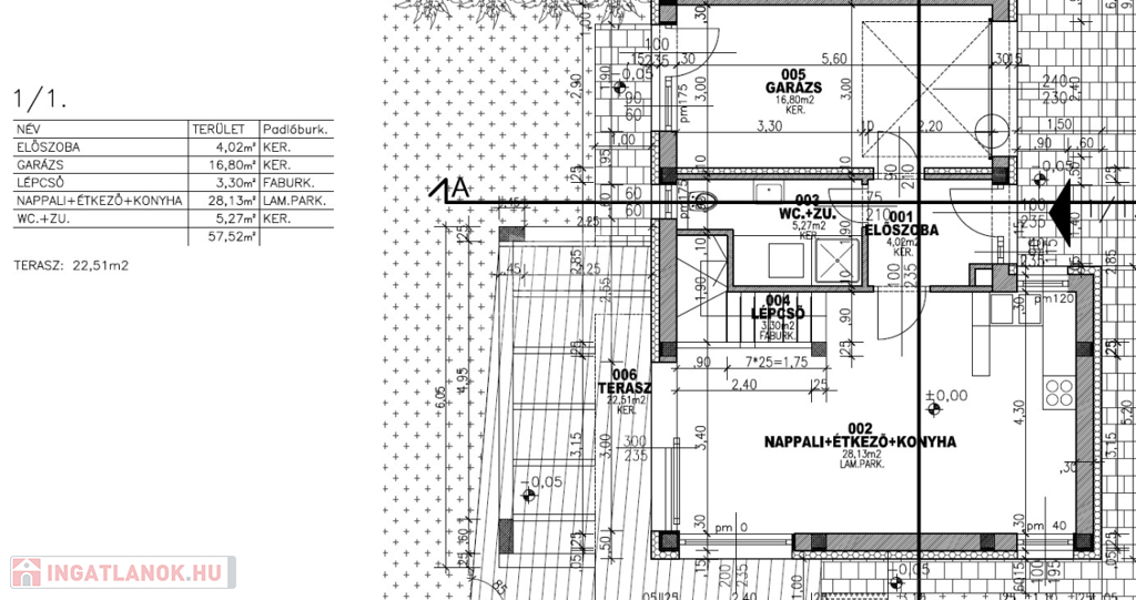
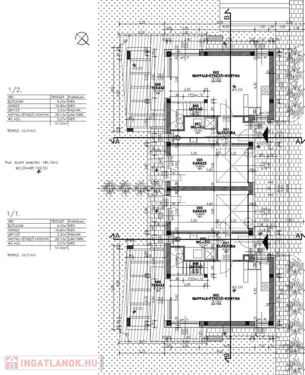
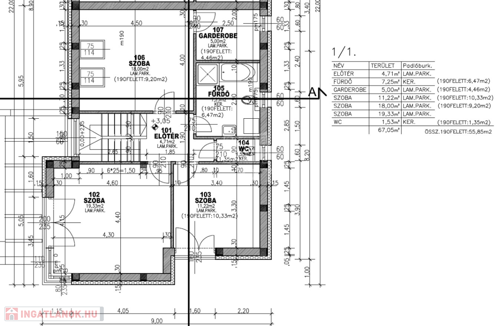
A tervezés szerint a lakóházak FÖLDSZINTJÉN :
előszoba 4 m2, nappali-étkező+ konyha 28 m2, zuhanyozó +WC (5,27 m2), emeletre vezető lépcsőtér 3,3 m2, garázs 17,4 m2, plusz egy 22,5 m2-es terasz került kialakításra.

EMELETEN:
közlekedő-lépcsőtér 9,4 m2, 3 szoba (19,33 m2, 11,22 m2, 9,20 m2), fürdőszoba (7,25 m2), WC (1,53 m2), gardrób (5 m2).

A HELYISÉGEK ELRENDEZÉSE AZ ALAPRAJZOKON LÁTHATÓ !

KÉPEK EGY RÉSZE berendezési és külső látványterv, amelyek a terek remek kihasználhatóságának, a színek, bútorok variálhatóságának bemutatására készültek.

MŰSZAKI TARTALOM:
- YTONG 30 cm-es falazat, 15 cm külső szigetelés
- válasz falak 10 cm-es ytong tégla
- monolit vasbeton födém
- a tető antracit Leier cserépfedést kapott
- három rétegű üvegezéssel, antracit színű műanyag külső nyílászárok
- elektromos antracit színű redőnyök, szúnyoghálóval
- minden helyiségben padlófűtés, helyiségenként szabályozható osztógyűjtővel
- 2 db inverteres fűtő-hűtő klíma
- fűtés hőszivattyúval
- vízmelegítő 100 l tartály, hőszivattyús
- elektromos garázsajtóval felszerelt fűtött garázs
- WPC kerítés
- térkövezett járdák

Hideg és meleg burkolatok 8000 Ft /m2, beltéri ajtók 80.000 Ft /db, kád 100.000 Ft/db, szaniterek 30.000 Ft / db árig választhatók amit tartalmaz az ingatlan vételára.

AZ IKERHÁZ TERVEZETT ÁTADÁSA: 2026 MÁRCIUS

A lakóházak, ÖNÁLLÓ MÉRŐÓRÁKKAL, HASZNÁLATBAVÉTELI ENGEDÉLLYEL, TÁRSASHÁZ ALAPÍTÓ OKIRATTAL, valamint H-TARIFÁS VILLANYÓRÁKKAL kerülnek átadásra.

Az ingatlan Sashegy alsó részén, csendes utcában található.
A környék infrastruktúrája jó, közelben bölcsőde, óvoda, orvosi rendelő, bevásárlási lehetőségek (INTERSPAR)
Könnyen elérhető az 7-es főút és az autópályák is M0,M1,M7.

Az ingatlanok HITELKÉPESEK !
További kérdéseivel, ÉRDEKLŐDÉSÉVEL VÁROM JELENTKEZÉSÉT!
FORDULJON HOZZÁM BIZALOMMAL !

(G.I.)

Dati di Casa

124 metri quadrati

386 metri quadrati

Ottimo/a

Case gemelle

Non é stato fornito

Geotermico

Non é stato fornito

Tutti i comfort

Di nuova corstuzione

Non é stato fornito

1 piano

Non é stato fornito

Mappa