Testo tradotto
                                                    
                            Testo originale
                            
                 Dunaharaszti kedvelt lakóparkjában, a Bezerédi lakóparkban, egy 8-lakásos társasház új-építésű lakásainak értékesítése elkezdődött! Az ingatlanok már 2M. Ft-tal leköthetők, AKÁR 20%-os önerővel!
A földszinten 4 db saját kerttel rendelkező ingatlan található, 3db nappali + 2 hálószobás, illetve 1db nappali + 1 hálószobás lakás. Mindegyik lakáshoz saját tároló és 2 db parkoló tartozik! A tároló és a parkolók a vételár részét képezik!
Az emeleten 3 db nappali + 1 hálószobás lakás és 1db nappali + 2 hálószobás lakás található! Mind a négy emeleti lakáshoz tartozik tároló és 2db külső autóbeálló. Ezek szintén a vételár részét képezik.
Az ingatlanok fan-coil klímával és riasztóval felszereltek, fűtésük hőszivattyús rendszerről történik, padlófűtés hő leadással.
Az ingatlanok jogi formája társasház, a lakások alábetétesítve lesznek!
Földszinti lakások:
1, lakás nettó 49,15 m2 + 18,35 m2 terasz, nappali + 1 háló, 150 m2 telek, fan-coil klíma (a hálószobákban kiállás előkészítés), riasztó, tároló, 2 db parkoló.
ELKELT!
2, lakás nettó 57,03 m2 + 13,83 m2 terasz, nappali + 2 szoba, 173,5 m2 telek, fan-coil klíma (a hálószobákban kiállás előkészítés), riasztó, kaputelefon, tároló, 2 db parkoló. utca
Ár: 89,625 M. Ft. SZABAD!
3, lakás nettó 60,77 m2 + 9,29 m2 terasz, nappali + 2 háló, 119 m2 telek, fan-coil klíma (a hálószobákban kiállás előkészítés), riasztó, kaputelefon, 2db parkoló
Ár: 91,155 M Ft. SZABAD!
4, lakás nettó 59,77 m2 + 9,74 m2 terasz, nappali + 2 háló, 108 m2 telek, fan-coil klíma (a hálószobákban kiállás előkészítés), riasztó, kaputelefon, 2db parkoló
Ár: 89,655 M. Ft. SZABAD!
Emeleti lakások:
5, lakás nettó 41,08 m2 + 12,37 m2 fedett terasz, nappali + 1 szoba, fan-coil klíma (a hálószobákban kiállás előkészítés), riasztó, kaputelefon, tároló, 2 db utcai parkoló.
ELKELT!
6, lakás nettó 50,56 m2 + 18,6 m2 fedett terasz, nappali + 1 szoba, fan-coil klíma (a hálószobákban kiállás előkészítés), riasztó, kaputelefon, tároló, 2 db utcai parkoló.
Ár: 89,79 M. Ft. SZABAD!
7, lakás nettó 61,62 m2, + 3,14 m2 erkély, nappali + 1 háló, fan-coil klíma (a hálószobákban kiállás előkészítés), riasztó, kaputelefon, 2db parkoló
Ár: 94,785 M Ft. SZABAD!
8, lakás nettó 57,05 m2, + 5,4 m2 erkély, nappali + 2 háló, fan-coil klíma (a hálószobákban kiállás előkészítés), riasztó, kaputelefon, 2db parkoló
Ár: 85,545 M. Ft. SZABAD!
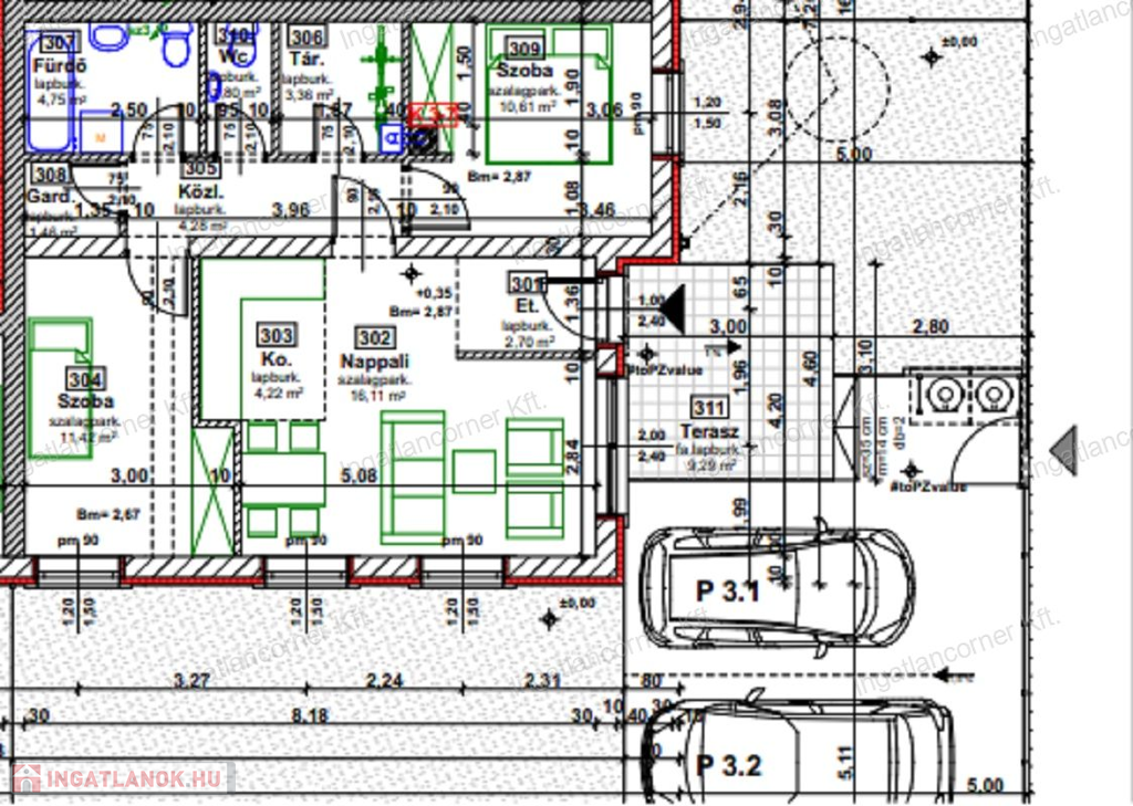
A hirdetés a 3-as lakás hirdetése.
Helyiség lista:
•Előtér: 2,7 m2 (lapburkolat)
•Nappali: 16,11 m2 (szalagparketta)
•Konyha: 4,22 m2 (lapburkolat)
•Szoba: 11,42 m2 (szalagparketta)
•Szoba: 10,61 m2 (szalagparketta)
•Közlekedő: 4,28 m2 (lapburkolat)
•Gardrób: 1,46 m2 (lapburkolat)
•Fürdőszoba: 4,75 m2 (lapburkolat)
•WC: 1,8 m2 (lapburkolat)
•Tároló: 3,36 m2 (lapburkolat)
•Fedetlen terasz: 9,29 m2 (fagyálló lapburkolat)
Műszaki jellemzői:
•Porotherm Klíma 30 kerámia falazat TM + 10 cm Grafit 80 homlokzati hőszigetelő
•Válaszfalak, Porotherm 30 AKU Z tégla falazat 30 cm
•Nyílászáró műanyag bukó-nyíló, hőszigetelt, 3-légkamrás thermo üvegezéssel, hő visszaverő fóliával.
•Fűtés és meleg víz hőszivattyús rendszerről működő padlófűtés, fan-coil klíma
•Riasztó
•Laminált parketta a hálószobákban, hidegburkolat a többi helyiségben (szabadon választható 3.000,-/m2-ig tartalmazza az ár)
•2 db gépkocsi beálló, viacolor burkolat
•Tereprendezés, kerítés, kapu
Bővebb műszaki tartalmat igény esetén e-mailben tudok küldeni!
Várható átadás: 2025. december
A kivitelező megbízható, számos referenciával rendelkezik!
A kivitelezést modern, időtálló stílus és prémium anyaghasználat jellemzi. A környék szép és rendezett, új, újszerű ingatlanok környezetében található!
A hitelügyintézésben igény szerint segítséget nyújtunk, cégünk kiváló hitelügyintézői kapcsolatokkal rendelkezik.
Fizetési ütemezés: Az ingatlanok 2 M. Ft-tal leköthetők, további fizetési ütemezés a kivitelezővel történt egyeztetés alapján.
Kiváló elhelyezkedése miatt a közeli főutak (M0, 51-es út) gyorsan elérhetőek.
A közelben minden megtalálható, amire szükség lehet.
Dunaharaszti az elmúlt 10 évben rendkívül nagy fejlődésen ment keresztül, Budapestre HÉV-vel, busszal, vonattal (jelenleg a Budapest-Belgrád vasútvonal építése miatt a vasúti forgalom szünetel) és autóval is gyorsan be lehet jutni.
Több bölcsőde, óvoda, általános iskola és egy gimnázium is van Dunaharasztin. A bevásárlási lehetőség nagy, minden megtalálható, amire szükség lehet!
Várom hívását, NE maradjon le róla!
                                        
65 metri quadrati
119 metri quadrati
Ottimo/a
Villette a schiera
Mattone
Non é stato fornito
Non é stato fornito
Tutti i comfort
Di nuova corstuzione
Non é stato fornito
Non é stato fornito
Non é stato fornito
 
                Cerchi nella nostra banca dati una semplice casa, appartamento, ufficio, garage, lotto o qualsiasi altro immobile!
Il dominio Immobiliare.hu é membro del Real Estate Group.
Immobili in vendita in Ungheria - Immobiliare.hu © 2025 Tutti i diritti riservati