Casa vendesi, Dunaharaszti

Pagina principale » Casa vendesi, Dunaharaszti » Casa vendesi, Dunaharaszti

110 500 000 Ft

€307 662
Dati dell'inserzionista

Madaras Dóra Nikolett

Scrivi messaggio
Il messaggio deve contenere almento 10 caratteri.
Descrizione

Testo tradotto

Testo originale
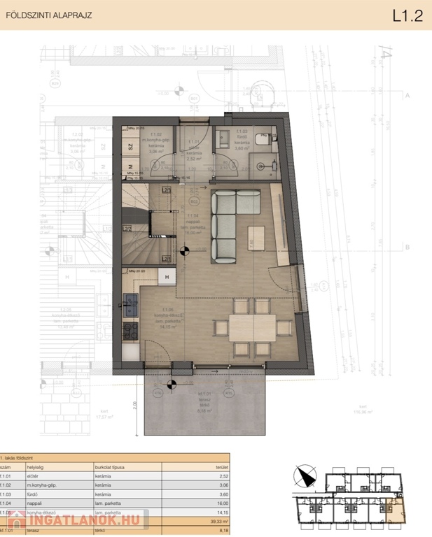
Dunaharasztiban eladó új építésű lakások!

Budapest közvetlen közelében, csendes és családbarát környezetben kínálunk eladásra 9 lakásos társasházban még 7 otthont.

Főbb jellemzők:
• Új építésű, tégla szerkezet, korszerű hőszivattyús fűtés és klíma
• Tágas amerikai konyhás nappali, 3 hálószoba, 2 fürdőszoba + háztartási helyiség
• Választható burkolatok és beltéri ajtók
• Saját kertkapcsolat (lakásonként eltérő méret)
• Zárt, parkosított udvar, elektromos kapubeálló

Kiváló lokáció: iskola, óvoda, üzletek, sportolási lehetőségek pár perc alatt elérhetők, jó közlekedési kapcsolatokkal.

Az ingatlanok alkalmasak CSOK és 3%-os hitel igénybevételére.
Az építkezés 40%-os készültségen áll, a lakások személyesen is megtekinthetők.

A lakások belső elrendezésüket tekintve, azonos paraméterekkel rendelkeznek.(~85 nm lakótér) Vételáruk 99.900.000- 112.900.000 Ft közt elérhető - az aktuális ingatlanhoz tartozó kert rész függvényèben.

Megtekintenéd személyesen is? Keress bizalommal időpontért, és találd meg új otthonod!

Dati di Casa

85 metri quadrati

114 metri quadrati

In costruzione

Villette a schiera

Non é stato fornito

Non é stato fornito

Non é stato fornito

Tutti i comfort

Di nuova corstuzione

del cortile

2 piani

Non é stato fornito