Casa vendesi, Erdőkertes

Pagina principale » Casa vendesi, Erdőkertes » Casa vendesi, Erdőkertes

99 900 000 Ft

€278 172
Dati dell'inserzionista

Sápi Balázs

Scrivi messaggio
Il messaggio deve contenere almento 10 caratteri.
Descrizione

Testo tradotto

Testo originale

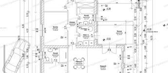
Erdőkertes központhoz közeli panorámás részén, csendes, aszfaltozott mellékutcában, nettó 106,6nm-es, nappali + 4 szobás újépítésű családi ház 581nm-es telekkel eladó!

Elosztás:

- Előszoba,

- nappali – konyha – étkező,

- szülő hálószoba fürdővel,

- közlekedő, 

- 3 kényelmes méretű szoba, 

- fürdőszoba, 

- vendégmosdó,

- háztartási helyiség

+ 12,18nm terasz.

Műszaki adatok:

- 30-as PTH tégla afalazat cm + 15cm dryvit szigetelés,

- 3 rétegű, hőszigetelt üvegezésű műanyag nyílászárók,

- beton cserépfedés,

- délkeleti tájolás – világos, napfényes terek,

- hőszivattyús fűtési rendszer,

- padlófűtés minden helyiségben,

- 3db fűtő-hűtő klíma, 

- 50db világítás, kiállás, konnektor

- parkoláshoz kocsibeálló kerül kialakításra.

Ár tartalmazza:

- műanyag nyílászárókat, bejárati ajtót 150.000.-Ft/db,

- beltéri ajtókat 65.000.-Ft/db,

- hidegburkolatokat 5.900.-Ft/nm, 

- melegburkolatokat 5.000.-Ft/nm, 

- kádat, zuhanyzót 70.000.-Ft/db,

- csaptelepeket 20.0000.-Ft/db,

- kádtöltő csaptelepet 30.000.-Ft,

- tartályos Wc-ket 40.000.-Ft/db,

- mosdókat 30.000.-Ft/db értékben.

Kiváló elhelyezkedés:

- Óvoda, iskola, bolt, gyógyszertár a közelben, buszmegálló pár perc sétára.

A burkolatok és a szaniterek a vevő igényei szerint még szabadon választhatók!

Kérésre teljes műszaki tartalmat, alaprajzot szívesen küldünk!

3%-os Otthon Start hitel, CSOK+ és ehhez kapcsolódó kedvezmények igénybe vehetők!

Várható kulcsrakész átadás: 2026. Július

Irányár: 99,9MFt

Hivatkozási szám: 2518302.

Megtekinthető telefonos időpont egyeztetés alapján:

Sápi Balázs +36 20 772-2429 sapibalazs@godolloi.hu  

GÖDÖLLŐ INGATLANKÖZPONT - www.godolloi.hu: Gödöllő és környéke legnagyobb ingatlan választéka /Gödöllő, Szada, Veresegyház, Kistarcsa, Kerepes, Erdőkertes, Fót, Dunakeszi/ eladó-kiadó családi ház, telek, lakás! Ingatlan építés és felújítás!

 

Dati di Casa

107 metri quadrati

581 metri quadrati

Ottimo/a

Casa unifamiliare

Mattone

Centralizzato/a

Non é stato fornito

Non fornito!

Di nuova corstuzione

Non é stato fornito

Non é stato fornito

Non é stato fornito