Casa vendesi, Gödöllő

Pagina principale » Casa vendesi, Gödöllő » Casa vendesi, Gödöllő

109 800 000 Ft

€283 545
Dati dell'inserzionista

Nagy Barbara

Scrivi messaggio
Il messaggio deve contenere almento 10 caratteri.
Descrizione

Testo tradotto

Testo originale
Töltsd az új otthonodban a karácsonyt!
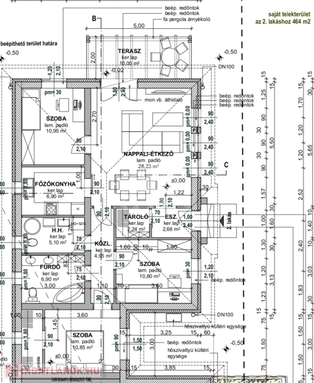
Eladásra kínálok Gödöllőn a kertvárosban, Kiralytelep varosrészen, egy újépítésű. egyszintes, nettó 92.58 m2-es ( + 10 m2 terasz), amerikai konyhás nappali + 3 hálószobás ikerházfelet, amely 464 m2 kizárólagos használatú telekrésszel rendelkezik!
Átadás:2025.december!!!

Helyiséglista:
- teraszkapcsolatos nappali/konyha/étkező (28.23 + 6.90 = 35.13 m2)
- terasz (10.00 m2)
- 3 hálószoba (10.95, 10.80, 21.85 m2)
- fürdőszoba (6.90 m2)
- háztartási helyiség/2. fürdőszoba (5.10 m2)
- gardrób (3.00 m2)
- tároló (2.24 m2)
- közlekedő (4.95 m2)
- előszoba (2.66 m2)

Az árba tetszőleges mobilgarázs tartozik!

Az ingatlan Leierplan 30 síkracsiszolt, ragasztott falazattal épül 15 cm homlokzati szigeteléssel, beton födémmel, a födémen 25 cm üveggyapot szigeteléssel, beton cseréppel, 3 rétegű, 5 légkamrás hőszigetelt nyílászárókkal.

A fűtésről hőszivattyú gondoskodik minden helyiségben padlófűtéssel, a fürdőkben kiegészítő törölközőszárítós radiátorral.

A két ikerfél között dupla hanggátló falazat épült!

Hívjon bizalommal! Tekintsük meg együtt!

Dati di Casa

94 metri quadrati

464 metri quadrati

Ottimo/a

Case gemelle

Mattone

Geotermico

Non é stato fornito

Tutti i comfort

Di nuova corstuzione

Non é stato fornito

Pianterreno

Non é stato fornito

Mappa
Fotografie