Testo tradotto
Testo originale
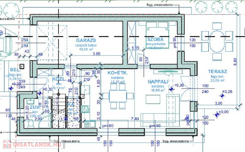
Gyál csendes, kertvárosi részén, , új építésű, kétszintes, 135 m2-es, nappali + 4 szobás, garázsos, utca felőli családi ház kulcsrakészen 351 m2-es, összközműves telekrészen 2025 nyár végi átadással, kulcsrakészen, 11 KW-os csúcskategóriájú Daikin hőszivattyúval, 3 db. fűtő-hűtő inverteres klímával eladó. Az udvar felőli, 142 m2-es, szintén nappali + 4 szobás ház 450 m2-es telekrésszel már elkelt.
Vasbeton sávalap, 30 cm-es Porotherm tégla főfalak 15 cm-es dryvit hőszigeteléssel. 30 cm. hőszigetelés a födémen. 24 KW-os kondezációs gázkazán biztosítja a fűtést és a meleg víz ellátást. Padlófűtés és radiátoros hőleadók. Törölközőszárítós radiátor a fürdőszobában. Terrán betoncserép héjalás. Festés, burkolás, szaniterek választhatóak. Riasztó vezetékelve. Bejárati kapuhoz elektromos kiállás kiépítve. Hőszigetelt, szekcionált garázskapu. Műanyag, fehér, 7 légkamrás, 3 rétegű üvegezésű ablakok. Rejtett redőnytokos, elektromos, alumínium redőnyök. Fehér mdf. felületű, belső ajtók. Geberit tartályos wc-k. Épített zuhany. Hőszigetelt padlásfeljáró.
CSOK plusz igényelhető.Az ország szinte összes bankjának a termékeit is kínáljuk egyedi kedvezményekkel, díjmentes ügyintézéssel. Hívjon bizalommal.
135 metri quadrati
351 metri quadrati
Ottimo/a
Casa unifamiliare
Non é stato fornito
Non é stato fornito
Non é stato fornito
Non fornito!
Non fornito!
Non é stato fornito
2 piani
Non é stato fornito
Cerchi nella nostra banca dati una semplice casa, appartamento, ufficio, garage, lotto o qualsiasi altro immobile!
Il dominio Immobiliare.hu é membro del Real Estate Group.
Immobili in vendita in Ungheria - Immobiliare.hu © 2025 Tutti i diritti riservati