Testo tradotto
Testo originale
Egyszintes családi házak garázzsal!
Gyál legkedveltebb kertvárosi részén új építésű egyszintes családi házak , garázzsal , 886 m2-es külön helyrajzi számú teleken 2026. április végi átadással kulcsrakészen eladók. Az ingatlant csak irodánk kínálatában találja.
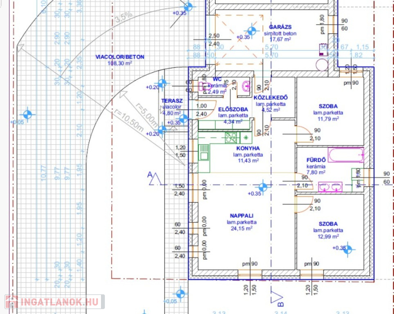
1.ház : nappali +2 szoba, konyha ,étkező ,fürdő, 2 WC,előszoba ,közlekedő + terasz + garázs (17,67m2-es ), hozzá tartozó telekrész 140 m2. Irányár:104,9Mft . Akár még egy szoba kialakítható a garázsból.
2. ház: nappali +4 szoba, konyha ,étkező ,fürdő, 2 WC,előszoba ,közlekedő + terasz + garázs (17,67m2-es ), hozzá tartozó telekrész 330 m2. Irányár:114,9Mft
Vasbeton sávalap, Rapid X-Therm PTH 30CM tégla főfalak 20 cm-es dryvit hőszigeteléssel. Műanyag homlokzati nyílászárók 3 rétegű üveggel. Beton födém 20 cm ásványszálas hőszigeteléssel. Fűtés és meleg víz hőszivattyúról, mindenhol padlófűtés . Antracit beton cserép héjazás. Festés, burkolás, szaniterek, belső ajtók választhatók. A hideg burkolatok 7000 Ft./m2 árig , meleg burkolatokat 4500 Ft./m2 árig, a belső ajtókat 50.000 Ft./db. árig tartalmazza a vételár. Riasztó vezetékelve, klíma becsövezése, rejtett redőnytok kialakítás,alumínium redőnyök fehér színben, elektromos kiállások a redőnynek , elektromos kiállás a kapuknál. H tarifa kiépítve, kocsibeálló viacolor (10x20-as) szürke, kiskaputól bejáratig Viacolor (10x20-as) szürke, a ház körül 40 cm széles védőjárda szegélykőből, közé apró kaviccsal betöltve.
Összközműves aszfaltozott, széles utca. Közelben iskola, óvoda, szolgáltató egységek, üzletek. A 84E jelű BKK autóbusz megállója a közelben.
OTTHON START HITEL, CSOK IGÉNYBE VEHETŐ!
Magyarország piacvezető hitelközvetítője által egyedi kamatkedvezményekkel és bankfüggetlen, díjmentes hitelügyintézéssel is segítjük vásárlását. Amennyiben minimum 25 millió Ft. összegű ingatlanfedezetes hitelt vesz igénybe általunk 500 Euro értékű Club Karos Spa**** wellness utalványt adunk ajándékba. (Az akció kizárólag a Money Network ügynökhálózatán keresztül beadott és folyósított jelzáloghitelekre érvényes.) Hívjon bizalommal!
100 metri quadrati
886 metri quadrati
Ottimo/a
Casa unifamiliare
Non é stato fornito
Non é stato fornito
Non é stato fornito
Non fornito!
Non fornito!
Non é stato fornito
1 piano
Non é stato fornito
Cerchi nella nostra banca dati una semplice casa, appartamento, ufficio, garage, lotto o qualsiasi altro immobile!
Il dominio Immobiliare.hu é membro del Real Estate Group.
Immobili in vendita in Ungheria - Immobiliare.hu © 2026 Tutti i diritti riservati