Testo tradotto
Testo originale
ÚJ ÉPÍTÉSŰ PRÉMIUM CSALÁDI HÁZ GYÁL KÖZPONTJÁBAN!
Ha modern, minőségi otthont keresel, ami energiatakarékos, kényelmes és minden szempontból jövőálló, akkor megtaláltad!
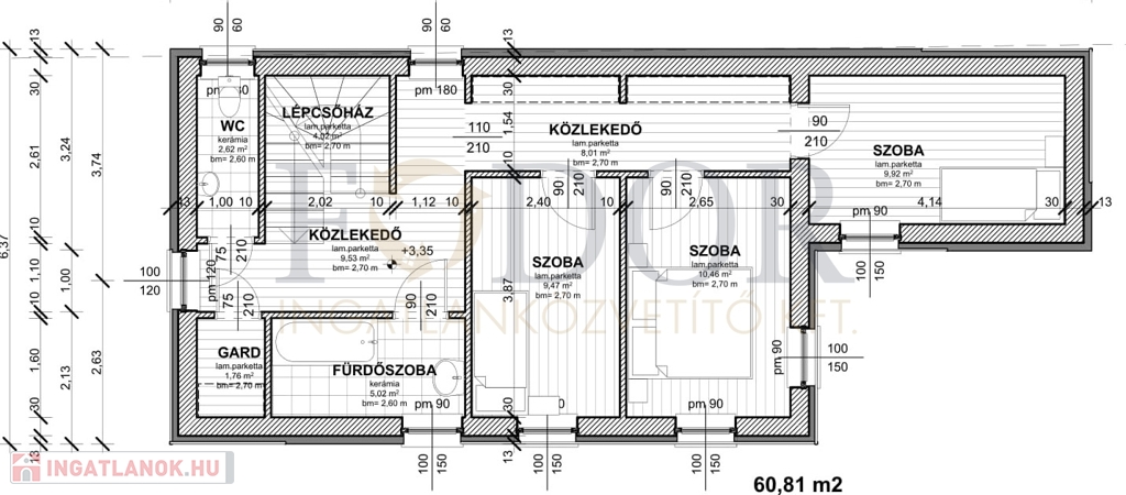
Eladó egy nettó 161 m²-es, letisztult, oldalhatárra épített, új építésű 2 szintes családi ház egy 449 m²-es saját telken, Gyál egyik legjobb, központi elhelyezkedésű részén.
A ház prémium műszaki tartalommal, tágas terekkel, nagy kerttel és igazi családi otthonra tervezett elrendezéssel készül.
Amerikai konyhás nappali + 4 külön nyíló szoba, dupla komfort, önálló garázs 27, 44 m2, terasz 13, 82 m2, modern gépészet – minden adott egy élhető, elegáns és hosszú távon fenntartható otthonhoz.
Várható átadás: 2026. I. negyedév
Főbb műszaki paraméterek
• Porotherm 30-as falazat, 15 cm hőszigeteléssel
• Lábazaton 12 cm XPS szigetelés
• 10 cm-es tégla válaszfalak
• 3 rétegű nyílászárók (kívül antracit, belül fehér)
• Elektromos redőnyök és szúnyoghálók
• Hőszivattyús padlófűtés + fürdőben elektromos törölközőszárító radiátor
• Nappaliban 1 db klíma, további szobákban klíma előkészítés
• Hő- és hangszigetelt, elektromos szekcionált garázskapu + 2 db elektromos kapu
• Viakolorral burkolt autóbeálló
• Riasztó- és kamerarendszer előkészítés
• Külső homlokzati LED világítás
• 3×25 A villamos teljesítmény
• Napelem előkészítéssel
• Teljes műszaki dokumentáció irodánkban elérhető
Jelenlegi készültségi szint (2025.11.14): Emeleti falazás elkészült.
Az ár kulcsrakész állapotra értendő – a burkolatok, beltéri ajtók és szaniterek választhatók.
Környék és elhelyezkedés
A lokáció kiváló: iskola, óvoda, boltok, szolgáltatások és tömegközlekedés pár perc sétára elérhetők.
A telek osztatlan közös, ügyvédi megosztással.
INGYENES HITEL- ÉS CSOK ÜGYINTÉZÉS!
Irodánk díjmentes hitelügyintézéssel, személyre szabott pénzügyi tanácsadással és az új CSOK program teljes körű ügyintézésével áll rendelkezésre.
161 metri quadrati
449 metri quadrati
Ottimo/a
Casa unifamiliare
Mattone
Non é stato fornito
Non é stato fornito
Tutti i comfort
Di nuova corstuzione
Non é stato fornito
Non é stato fornito
Non é stato fornito
Cerchi nella nostra banca dati una semplice casa, appartamento, ufficio, garage, lotto o qualsiasi altro immobile!
Il dominio Immobiliare.hu é membro del Real Estate Group.
Immobili in vendita in Ungheria - Immobiliare.hu © 2026 Tutti i diritti riservati