Casa vendesi, Győrzámoly

Pagina principale » Casa vendesi, Győrzámoly » Casa vendesi, Győrzámoly

149 000 000 Ft

€383 882
Dati dell'inserzionista

Czuprák-Csehi Bettina

Scrivi messaggio
Il messaggio deve contenere almento 10 caratteri.
Descrizione

Testo tradotto

Testo originale

Igazi gyöngyszem Győrzámolyon! A Szigetköz egyik legkedveltebb településén eladó Benes Gábor építész által tervezett és épített, 3 hálószobás családi ház. 

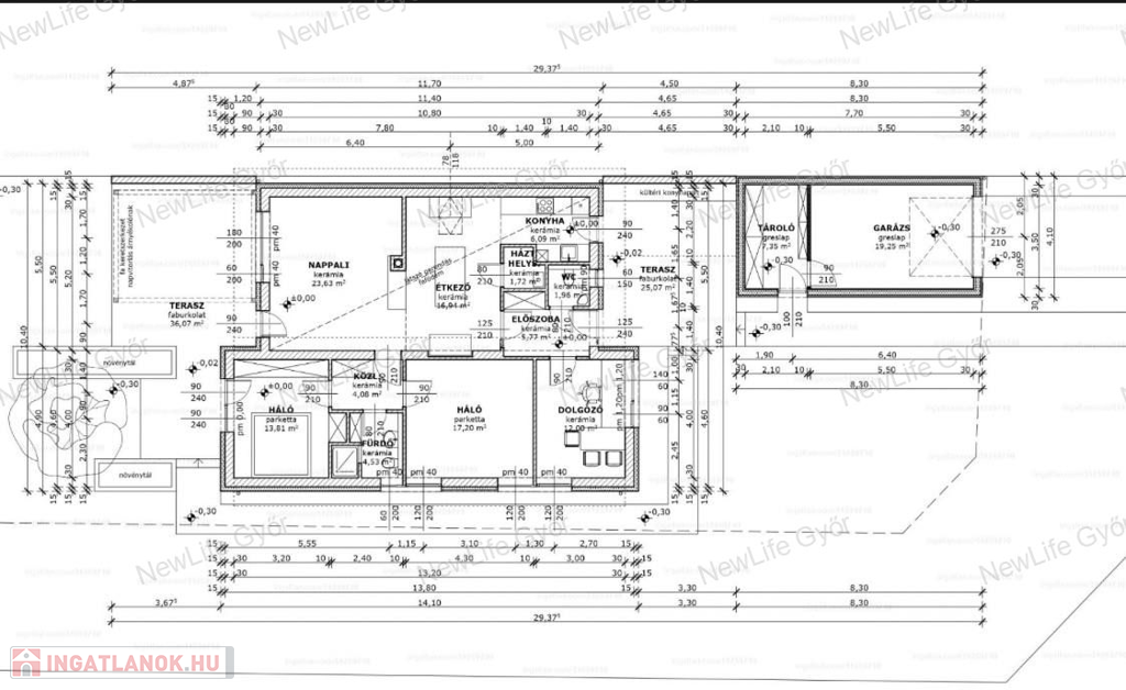
A ház alapterülete 108 m2 + 27 m2 (garázs, tároló), míg a telek mérete 1109 m2.

A házban 3 hálószoba+nappali, valamint 2 fürdőszoba -egy zuhanyzóval, egy mosdóval, plusz egy vendégmosdó található. A ház 2013-ban épült.

A ház szerkezete: sávalapra épült, 30 cm kerámia falazat+15 cm külső hőszigetelés, 30 cm cellulóz padlás szigetelés, Baumit tetőcserép, látszó fagerendás pórfödém.

A nyílászárók 3 rétegű hőszigetelt üvegezésű, Visi-Therm fa nyílászárók, Velux tetőtéri ablakok, fa beltéri ajtók.

A fűtést Sauner Duval kombi gázkazán, padlófűtés + helyiségenként korszerű lapradiátorokkal, fürdőszobában törölközőszárító radiátorral. A nappaliban található cserépkályha igény esetén plusz meleget és kellemes hangulatot biztosít.



A BELSŐ TÉR JELLEMZŐI:



- előszoba (beépített szekrénnyel)

- 3 hálószoba, nagy ablakokkal, részben beépített bútorokkal

- 1 zuhanyzós fürdőszoba wc-vel (beépített szekrénnyel)

- 1 különálló wc

- háztartási helyiség

- konyha (konyhabútorral, hibátlan gépekkel, indukciós főzőlappal)

- étkező

- nappali (fatüzelésű cserépkályhával)





A ház előtt 3 beállós, térkövezett kocsibeálló + 1 garázs + zárt tároló kapott helyet.

A kertben 2 ellentétes tájolású, részben fedett terasz (25 + 36 m2).

Egy teljesen felszerelt konyha is kiépítésre került a  teraszon.

Valamint elkerített kutyaudvar,tüzifa és kuka tároló,dekor medence a hátsó teraszon,magaságyások a kert végében,szép, gondozott kert, nagy méretű fákkal, dús növényzettel, termő gyümölcsfákkal.



Az ingatlan elrendezése és belső kialakítása az építész stílusában készült, amely magába foglalja a tágas, világos tereket és a természetes anyagok használatát.



A ház körüli kert gondosan ápolt, tökéletes hely a pihenésre és kikapcsolódásra.



Az ingatlan kiváló elhelyezkedésű csendes zsákutcában, közvetlenül a töltés mentén fekszik; 4 perc sétára található a buszmegálló, faluközpont 10 perc sétával elérhető. Autóval Győr belvárosa 15 perc alatt közelíthető meg.



A közelben található bölcsőde, óvoda, általános iskola, lovarda, Coop, CBA, háztartási üzlet, fodrász, kozmetikus, háziorvosi rendelő, gyógyszertár, éttermek, fagyizók, Lipóti pékség, benzinkút és autómosó is.

Dati di Casa

135 metri quadrati

1 109 metri quadrati

Ottimo/a

Casa unifamiliare

Mattone

Non é stato fornito

Non é stato fornito

Non fornito!

Non fornito!

Non é stato fornito

Non é stato fornito

Non é stato fornito