Testo tradotto
Testo originale
Eladó családi ház Gyula városának kedvelt Újváros városrészében!
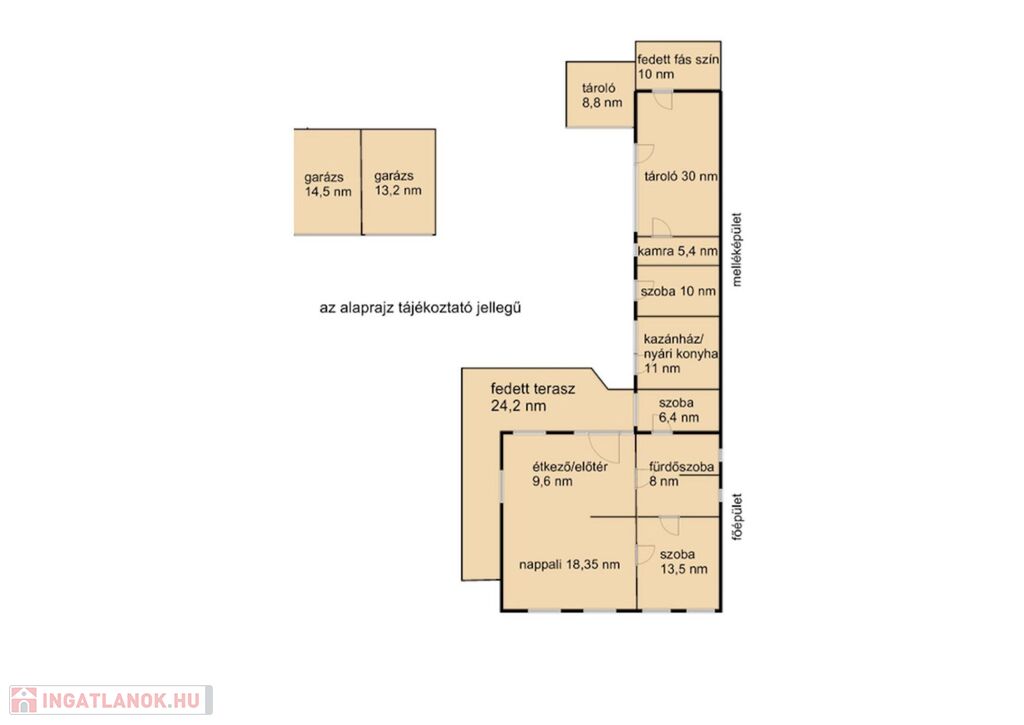
Ez a 120 m²-es, részben felújított családi ház egy 1114 m²-es telken helyezkedik el, csendes utcában, kiváló közlekedési lehetőségekkel. Az ingatlan alacsony fenntartású, és minden igényt kielégítő felszereltséggel rendelkezik.
A házban 1 tágas szoba, egy félszoba, egy amerikai konyhás nappali, valamint egy fürdőszoba található. Az otthon kényelmét új nyílászárók, külső hőszigetelés és klíma biztosítják. A redőnyözött ablakok és a szúnyoghálók tovább fokozzák a komfortérzetet.
Az ingatlan egy 70-es évekbeli kockaházból került kialakításra, a felújítás során a ház 5 cm-es külső hőszigetelést kapott, megtörtént az aljzat szigetelése és betonozása, új műanyag nyílászárók kerültek beépítésre, illetve amerikai konyhás nappali került kialakításra. Az ingatlan tetőszerkezete is újszerű, a fűtésről kombi gázkazán gondoskodik radiátoros hőleadókkal.
Az ingatlanhoz tartozik egy gyönyörű kertrész, terasz, valamint egy fúrt kút is, amely ideális lehet kertészkedéshez vagy nyári pihenéshez. A dupla garázs mellett egy lakható melléképület is található a telken, amely számos további lehetőséget kínál akár nagyobb gyermeküknek szeretnének saját életteret, akár egy nagyszülőt venne magamellé a család.
A ház részben berendezett, beépített szekrényekkel és gardróbbal felszerelt, így az új tulajdonosnak szinte csak a bőröndjeit kell hoznia. A melléképület további hasznos térként szolgálhat, akár vendégházként, akár műhelyként.
Ne hagyja ki ezt a páratlan lehetőséget, hogy egy ilyen remek adottságokkal rendelkező ingatlant vásárolhasson Gyulán! Ideális választás családoknak és azoknak, akik szeretnének csendes környezetben, mégis közel a város nyújtotta lehetőségekhez élni.
Keressen bizalommal további információért és időpont egyeztetésért!
(További képekért és információkért kérem hívjon!)
120 metri quadrati
1 114 metri quadrati
Rinnovato/a
Casa unifamiliare
Mattone
Pompa di ricircolo (sistema di riscaldamento chiuso a pressione)
Non é stato fornito
Non fornito!
Non fornito!
Non é stato fornito
Non é stato fornito
Non é stato fornito
Cerchi nella nostra banca dati una semplice casa, appartamento, ufficio, garage, lotto o qualsiasi altro immobile!
Il dominio Immobiliare.hu é membro del Real Estate Group.
Immobili in vendita in Ungheria - Immobiliare.hu © 2025 Tutti i diritti riservati