Casa vendesi, Hajdúszoboszló

Pagina principale » Casa vendesi, Hajdúszoboszló » Casa vendesi, Hajdúszoboszló

99 900 000 Ft

€273 063
Dati dell'inserzionista

Kiss Ferenc

Scrivi messaggio
Il messaggio deve contenere almento 10 caratteri.
Descrizione

Testo tradotto

Testo originale
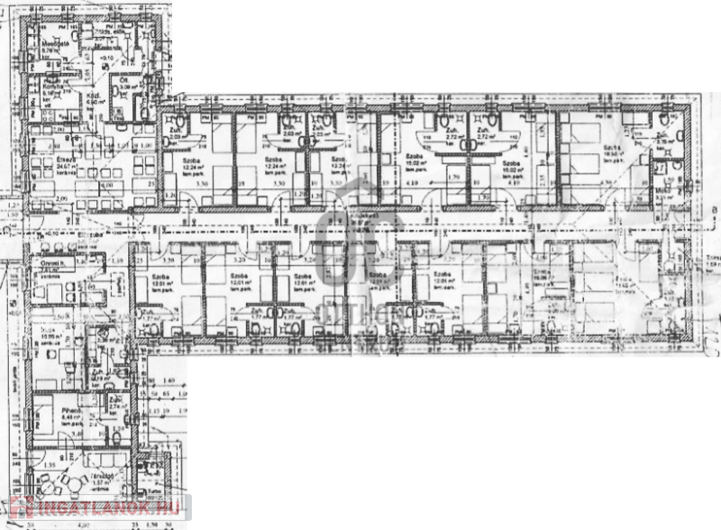
Épülő lakóparkban eredetileg idősek otthonának tervezett 420 nm-es most épülő ingatlan 1400 nm-es telken eladó.
Az épület kiválóan hasznosítható panziónak, apartman háznak, de akár 6 - 8 lakásos társaházzá is alakítható.

jelenlegi állapot:
- 13 apartman, (szoba + fürdőszoba)
- kiszolgáló helyiségek, konyha, étkező, társalkodó, stb, mely még bármi más funkcióra is átalakítható
- villamos hálózat kiépítve
- víz és fűtés csövek részben kiépítve
- belső vakolt falak
- kűlső műanyag nyílászárók, fa beltéri ajtók
- külső szigetelés 80%-ban befejezve
- lindab lemeztető
- összes közmű bekötve

Az épület mostani formájában még sokcélú hasznosítási tevékenységgel fejezhető be, elhelyezkedése miatt rendkívűl jó befektetési lehetőség,

Dati di Casa

420 metri quadrati

1 420 metri quadrati

Ottimo/a

Casa unifamiliare

Non é stato fornito

Pompa di ricircolo (sistema di riscaldamento chiuso a pressione)

Non é stato fornito

Non fornito!

Non fornito!

Non é stato fornito

Non é stato fornito

Non é stato fornito