Testo tradotto
Testo originale
Eladó családi ház Iregszemcsén. Nyugalom, tér és lehetőségek a Balaton közelében!
Tolna megye kedvező fekvésű településén, Iregszemcsén, a Balatontól mindössze 30 km-re, a településközpont közelében kínálunk eladásra egy részben felújított, 85 m2 alapterületű családi házat, amely tökéletes választás állandó otthonnak, nyaralónak vagy akár befektetésnek is!
Amit kínál ez az ingatlan:
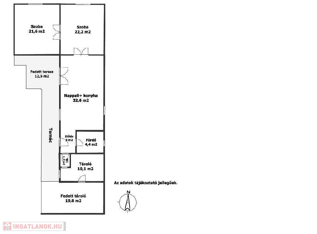
Világos, tágas terek , 2 kényelmes szoba, amerikai konyhás nappali, bővíthető elrendezés.
Modern, beépített konyha gépekkel és konyhabútorral, melyek az ár részét képezik.
Hangulatos fedett terasz és tornác, amely ideális reggeli kávézásokhoz, pihenéshez.
Új tető és új utcafronti műanyag nyílászárók, hosszú távú megtakarítást jelentő felújítások.
Elektromos hálózat nagy része felújított.
Fűtési lehetőségek: elektromos fűtőpanel + kályha.
Új bojler beépítve, a fürdőszoba és mellékhelyiség felújítása az új tulajdonos ízlésére vár.
Fedett tároló vagy gépkocsibeálló, amely praktikus, többfunkciós térként használható (akár lakószobává is alakítható).
Külső adottságok:
Sík, jól hasznosítható telek, a végében egy tároláshoz tökéletes pincével.
Központi elhelyezkedés,pár perces sétára minden fontos szolgáltatás elérhető.
Ideális választás mindazoknak, akik vidéki környezetben, de jó közlekedéssel keresnek otthont vagy nyaralót, esetleg befektetés céljából vásárolnának.
Ne hagyja ki ezt a kivételes lehetőséget! Kérjen időpontot megtekintésre még ma!
Referencia szám: M311643
85 metri quadrati
605 metri quadrati
Buono/a
Casa unifamiliare
Misto/a
Corrente elettrica
Corrente elettrica
Comfort
di oltre di 50 anni
Non é stato fornito
Pianterreno
Non é stato fornito
Cerchi nella nostra banca dati una semplice casa, appartamento, ufficio, garage, lotto o qualsiasi altro immobile!
Il dominio Immobiliare.hu é membro del Real Estate Group.
Immobili in vendita in Ungheria - Immobiliare.hu © 2026 Tutti i diritti riservati