Testo tradotto
Testo originale
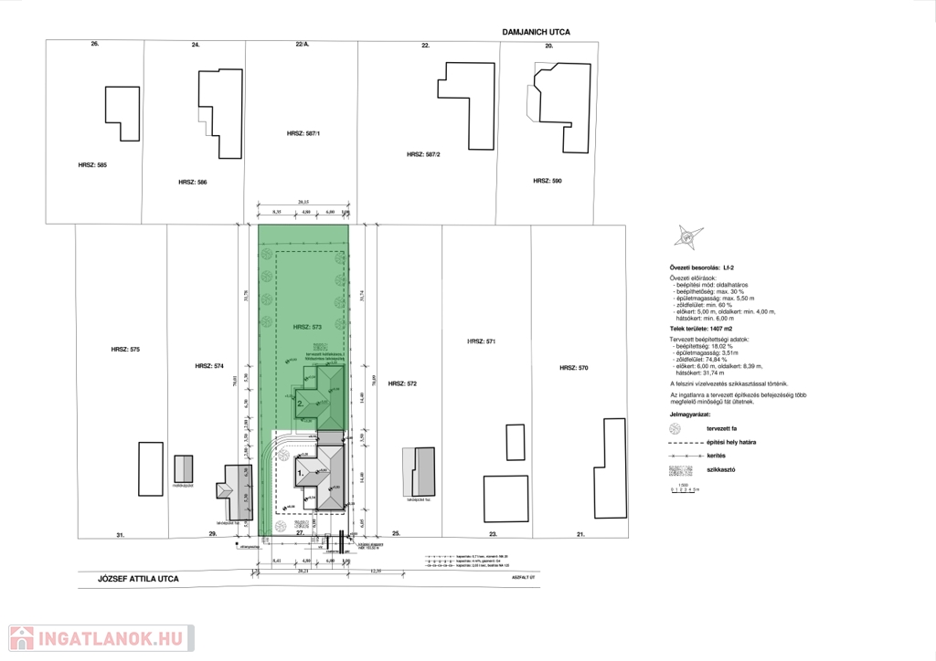
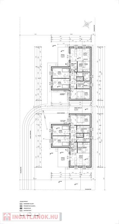
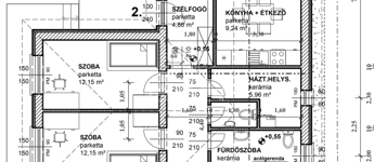
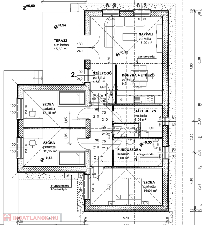
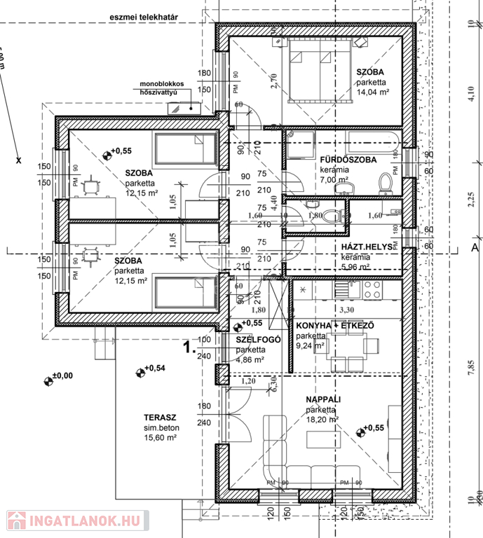
Kókán a József Attila utca 27. szám alatt, 1407 m2-es telkeken, újonnan épülő nettó 92,3 m2 nettó hasznos lakótérrel rendelkező, kulcsrakész ikerházfelek eladóak
A fedett gépkocsibeálló az utcafronti házhoz tartozik, melynek kizárólagos használatú telekrésze 413 m2. A hátsó háznak 994 m2-es a kizárólagos használatú telekrésze.
Az ingatlanok 30-as Nútféderes téglából épülnek, fa födémmel.
A tető héjazata antracit betoncserép lesz, a homlokzatok 10cm Grafitos, a padló 10cm lépésálló, a födém 25cm ásványgyapot szigeteléssel lesz ellátva.
A külső nyílászárók 6 légkamrás háromrétegű üveggel szerelt műanyag thermók lesznek.
A fűtést hőszivattyús rendszer fogja ellátni, padlófűtéssel.
Műszaki tartalom:
-Csempe, járólap 3000 ft/m²
-Meleg burkolat 3000 Ft/m²
-Fürdőkád: 40.000.- Ft
-Beltéri ajtók 32.000.- Ft. /db
-Csaptelepek: 15.000.- Ft. /db
Magasabb árú választás is lehetséges a különbség finanszírozásával.
Elektromos kiépítés:
-Konnektorok szobákban: 3 db
-Konnektorok nappaliban 4db + internet és kábeltv kiállás
-Konnektorok konyhában: 6db
-Világítás helyiségenként 1-1 db
-Kábeltévé: Előkészítés
-Kapumozgató elektronika: előkészítés
-Riasztó: előkészítés
Az utcafronti kerítés színezett zsalukővel, fa lécezéssel készül.
INGYENES hitel tanácsadás, CSOK Plusz ügyintézés!
BANKFÜGGETLEN hitelcentrumunk az összes elérhető bank és hitelintézet ajánlatát versenyezteti az Ön kedvéért, ráadásul DÍJMENTESEN.
- Egyedi, bankfiókban nem elérhető kamat- és díjkedvezmények
- Hitelképesség vizsgálat
- Idő, energia és pénz megtakarítás
- Teljes hivatali ügyintézés
Amennyiben hirdetésem felkeltette az érdeklődését vagy egyéb információra van szüksége hívjon bizalommal!
92 metri quadrati
994 metri quadrati
Ottimo/a
Case gemelle
Mattone
Geotermico
Non é stato fornito
Tutti i comfort
Di nuova corstuzione
Non é stato fornito
Pianterreno
Non é stato fornito
Cerchi nella nostra banca dati una semplice casa, appartamento, ufficio, garage, lotto o qualsiasi altro immobile!
Il dominio Immobiliare.hu é membro del Real Estate Group.
Immobili in vendita in Ungheria - Immobiliare.hu © 2026 Tutti i diritti riservati