Casa vendesi, Majosháza

Pagina principale » Casa vendesi, Majosháza » Casa vendesi, Majosháza

60 000 000 Ft

€155 650
Dati dell'inserzionista

Ördög Klára

Scrivi messaggio
Il messaggio deve contenere almento 10 caratteri.
Descrizione

Testo tradotto

Testo originale
Majosházán új építésű ikerház ELADÓ!
CSOK PLUSZRA alkalmas!

Pest Vármegye déli részén Budapesttől 30 km-re Duna parti településen, Majosházán került megépítésre ez az átlagon felüli műszaki tartalommal rendelkező ikerház.
Ingatlan mindkét fele eladó!

Ingatlan rövid műszaki tartalma:
- 30 cm-es téglafalazat
- 10 cm-es homlokzati szigetelés
- fa födém, - 30 cm-es kőzetgyapot szigetelés,
- antracit szürke betoncserép, - páramentesítő fóliával
- műanyag nyílászárok 3 rétegű hő- és hangszigetelt üvegezéssel
- fűtés- melegvizet kondenzációs gázkazán biztosítja,- padlófűtéssel megoldva ( fürdőszobában plusz törölközőszárító radiátor)

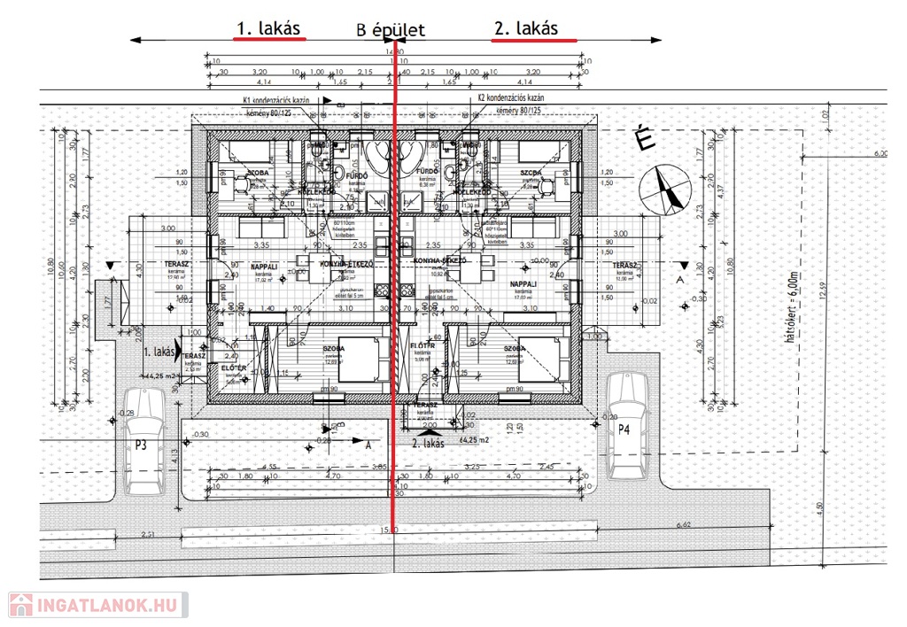
Ingatlan bemutatása: Két lakásos ikerház.
Mind két lakás nettó 64.25 nm + 12.90 nm terasz
Elosztása: előszoba, nappali+ konyha, 2 db. szoba (12.69 nm, 9.28 nm), közlekedő, Wc., fürdőszoba, terasz.

Az ingatlanokhoz tartozik saját lekerített telekrész: első házrészhez kb. 350 nm, hátsó házrészhez kb. 400 nm.

A településen és egyben az ingatlantól nem mesze található: óvoda, iskola, posta, orvosi rendelő, bevásárlásilehetőségek, játszótér és természetesen a Dunai kikötő.
Az ingatlant elismert, megbízható vállalkozó építette!

Amennyiben felkeltette érdeklődését az ingatlan várom szeretettel hívását időpont egyeztetésre!

Tőlünk vásárolt ÜGYFELEK számos kedvezményt vehetnek igénybe min pl. független- ingyenes hitelügyintézés és tanácsadás, MÖMAX áruházban vásárlás esetén 10 % , DIEGO-ba vásárlás esetén 10%, Vét-Gát vagyonvédelem- Szolgálat ingyenes bekötés, Sentinel- Max védelmi szolgálat ingyenes bekötés, Asztalos belső építés minden megrendelésből 10%, Enterprise Development online marketing és honlap készítés 10%.

Dati di Casa

64 metri quadrati

400 metri quadrati

Come nuovo/a

Case gemelle

Mattone

Pompa di ricircolo (sistema di riscaldamento chiuso a pressione)

Gas

Tutti i comfort

Non fornito!

del cortile

Pianterreno

Non ammobiliato/a

Mappa