Casa vendesi, Nyíregyháza

Pagina principale » Casa vendesi, Nyíregyháza » Casa vendesi, Nyíregyháza

55 000 000 Ft

€143 274
Dati dell'inserzionista

Némethné Judit

Scrivi messaggio
Il messaggio deve contenere almento 10 caratteri.
Descrizione

Testo tradotto

Testo originale
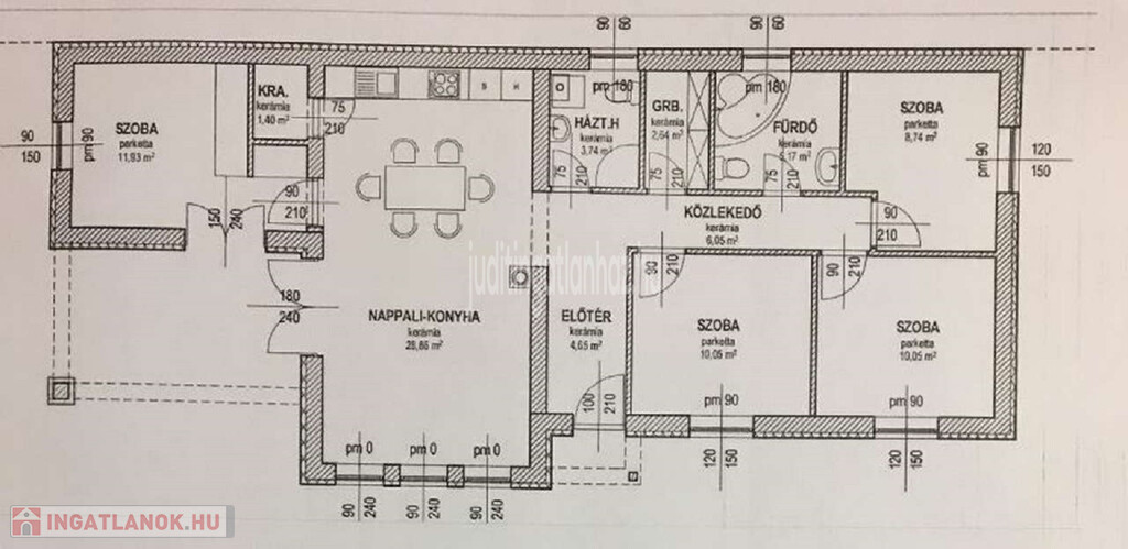
Nyíregyháza bármely részén vagy 10 km vonzáskörzetében új építésű családi házak kivitelezését vállaljuk 550 000 Ft-os négyzetméter áron. Az ingatlanok utólag fizetéssel épülnek, minden kedvezmény igényelhető. A családi házak 30-as téglából épülnek, külsőleg 15 cm-es nikecel szigetelés, három rétegű fehér műanyag nyílászárók, fafödém, gipszkarton mennyezet, fölötte 20 cm-es üveggyapot szigetelés, cserép tető. A belső ajtó a burkolat és a szaniter szabadon választható. Fűtése hőszivattyú mely padlóra vezérelt. A NÉGYZETMÉTER ÁR A TERVEZÉST IS TARTALMAZZA.   Ha felkeltettem az érdeklődését jöjjön tekintse meg a referencia házakat és döntsön! AZ ÁRBAN A TELEK ÁR NINCS BENNE! Költözési határ idő szerződéstől számítva 6-8 hónap!

Dati di Casa

100 metri quadrati

1 000 metri quadrati

In costruzione

Casa unifamiliare

Mattone

Corrente elettrica

Non é stato fornito

Tutti i comfort

Di nuova corstuzione

del cortile

Pianterreno

Non é stato fornito