Casa vendesi, Nyíregyháza

Pagina principale » Casa vendesi, Nyíregyháza » Casa vendesi, Nyíregyháza

124 000 000 Ft

€323 018
Dati dell'inserzionista

Hegedüs István

Scrivi messaggio
Il messaggio deve contenere almento 10 caratteri.
Descrizione

Testo tradotto

Testo originale
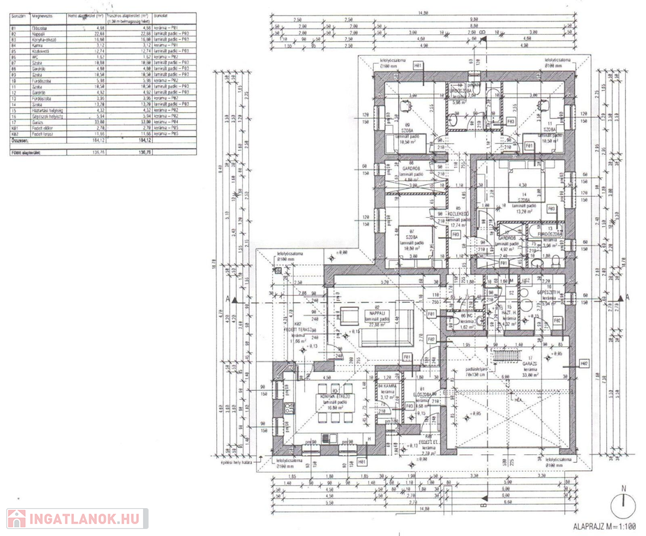
Nyíregyháza Nyírszőlősben eladó egy 137 nm-es, 4 külön nyíló szoba+ nappalis-étkezős, dupla komfortos, hőszivattyús padlófűtéssel szerelt fűtésrendszerű, új építésű önálló családi ház, 500 nm-es körbekerített telekterülettel, 33 nm-es 2 állásos garázzsal, 11 nm-es fedett terasszal, jelenleg még választható burkolatokkal.
Az ingatlan műanyag nyílászárókkal, klímával felszerelt, 50 cm-es Viablokk falazóanyagból épült,15 cm-es homlokzati, és 25 cm-es födém szigeteléssel ellátott, a mai kornak megfelelő energetikai szabályoknak megfelelve. A házban 4 különnyíló szoba, nappali, konyha-étkező, kamra, 2 fürdőszoba-WC vel, külön WC, 2 gardrób, előszoba, egy háztartási és gépészeti helység található.
Igény szerint kérhető a családi ház bútorozása és világító testek felszerelése. (Beépített egyedi gépesített konyhabútort, előszoba fal, szobák teljes bútorzatát és felszereltségét ,(lámpák, csillárok energiatakarékos LED világítás).
Bármilyen kérdése van az ingatlannal kapcsolatban, annak hitelfinanszírozásáról, vagy ha személyesen megtekintené, keressen bizalommal!
Megtekintheti további hirdetéseimet.https://favoritingatlan.hu/ertekesito/144/hegedus-istvanAz ingatlan azonosítója: 68194Érdeklődni: +36707797760 Az ingatlan azonosítója: 68194 Érdeklődni: +36707797760

Dati di Casa

137 metri quadrati

500 metri quadrati

In costruzione

Casa unifamiliare

YTONG

Geotermico

Non é stato fornito

Non fornito!

di 1-5 anni

Non é stato fornito

Non é stato fornito

Non é stato fornito

Fotografie