Casa vendesi, Nyíregyháza

Pagina principale » Casa vendesi, Nyíregyháza » Casa vendesi, Nyíregyháza

82 000 000 Ft

€209 617
Dati dell'inserzionista

Szabolcsi Zoltán

Scrivi messaggio
Il messaggio deve contenere almento 10 caratteri.
Descrizione

Testo tradotto

Testo originale
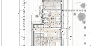
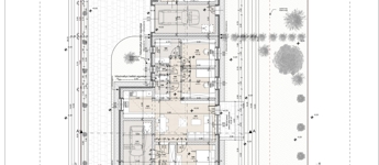
Nyíregyháza - Oros között ÚJ téglaépítésű, 15 cm grafitos hőszigeteléssel, 108 nm-es 3 szoba + amerikai konyhás nappalival teraszkapcsolattal, mosókonyhával, külön fürdő és 2 wc, választható járólap és laminált padló burkolattal, választható hőszivattyús H tarifás mérőórával vagy egyedi gáz padló fűtéssel, inverteres klímával, 3 réteg üvegezésű műanyag nyílászárókkal, 470 nm-es körbekerített telken, terasszal, 16 nm-es automata kapuval ellátott garázzsal, földszintes amerikai típusú ikerház, 2025 év végi átadással eladó.Az ingatlan azonosítója: 97332Érdeklődni: +36702560693 Az ingatlan azonosítója: 97332 Érdeklődni: +36702560693

Dati di Casa

108 metri quadrati

470 metri quadrati

In costruzione

Casa unifamiliare

Mattone

Geotermico

Non é stato fornito

Non fornito!

di 1-5 anni

Non é stato fornito

Non é stato fornito

Non é stato fornito

Fotografie